Трехкомнатная квартира новое, нулевой этаж, Centar, Opatija

€ 585 000
3
125 m²
2
1
Да
Терраса

Пометка

Объявление обновлено 30.04.2026
Описание

This description has been translated automatically and may not be accurate

ID: 2609

OPATIJA - CENTER, EXCLUSIVE NEW BUILDING, WHICH PROVIDES A NEW DIMENSION OF LIVING NEAR ALL NECESSARY AMENITIES AND THE SEA!

With its exceptional design and quality, this exclusive new residential building offers a wide selection of luxury apartments of various sizes and layouts, with the highest standards of construction and equipment with an emphasis on quality planning of the living space.

All apartments are equipped with the most modern, highest quality and healthiest interior materials, a modern security system, the fastest optical internet and superb heat and sound insulation, and the highest quality facade with the highest ecological construction standards and an A+ energy certificate.

The building includes an underground garage, an elevator, and spacious roof terraces with a jacuzzi and sun deck that belong to the apartments on the upper floors.

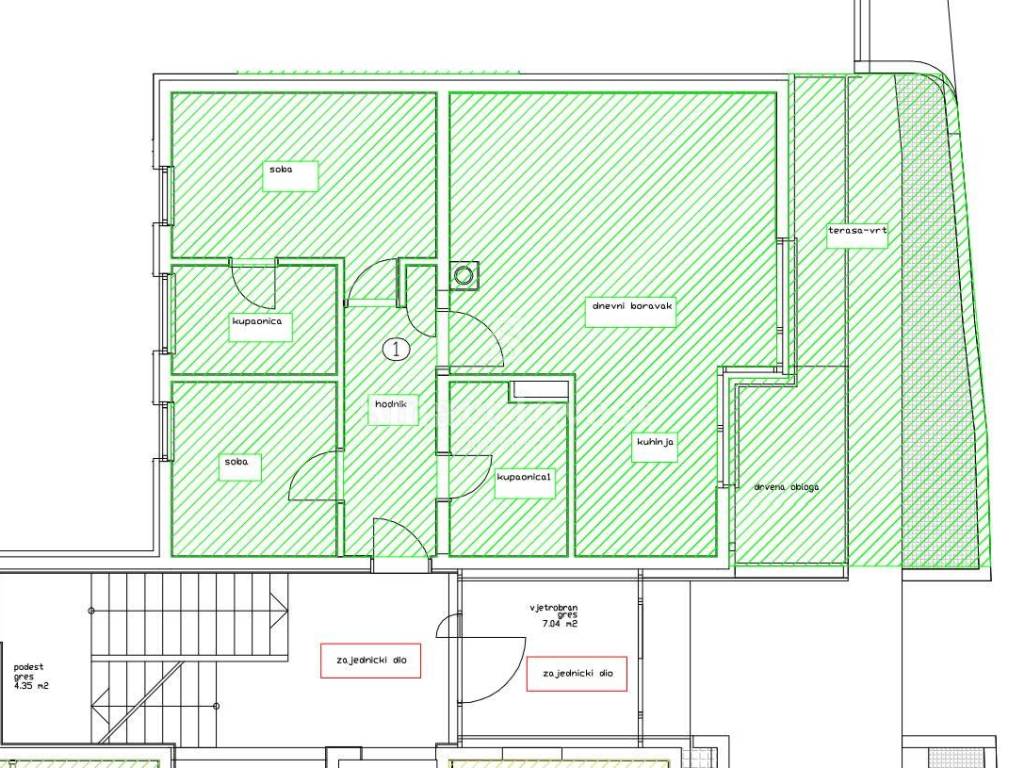
APARTMENT S1 - ground floor - total area 125.68 m2, with terrace and garden, 2 parking spaces in the garage
Consists of a corridor, living room with kitchen, two bedrooms and two bathrooms (total area 69.97 m2). The apartment has also a loggia, a paved courtyard D1 and a garden V1 with a total area of 26.35 m2, an upper parking space P1G, a lower parking space P1D and a storage room S1 in the basement with a total area of 29.36 m2, which all together with the living area makes a gross area of 125,68 m2.

PRICE
The price includes 25% VAT, the buyer doesnt pay the real estate transfer tax. In case of buying on a legal entity registered in Croatia it is possible to refund full VAT after the purchase.

For more information and a viewing appointment call: +385/99/320-0008

ID CODE: 2609

Agencija Opatija
Ovlašteni posrednik
Mob: +385/99/320-0008
E-mail: office@smart-invest.hr
www.smart-invest.hr
Если вы хотите узнать больше, вы можете поговорить с Agencija Opatija.
Характеристики
Типология
Квартира
Договор
Продажа
Этаж
1
Лифт
Да
Площадь
125 m² | коммерческая 151 m²
Помещения
3
Спальни
2
Ванные
2
Балкон
Нет
Терраса
Да
Гараж, машиноместа
1 в частный гараж/парковка
Кондиционер
Автономное, холод/тепло
Другие характеристики
  • Сигнализация
  • Железная дверь
Деталь поверхности

Жилой фонд

Этаж
1
Площадь
125,0 m²
Коэффициент
100%
Тип площади
Основная
Коммерческая площадь
125,0 m²

Участок

Этаж
Нулевой этаж
Площадь
26,0 m²
Коэффициент
100%
Тип площади
Дополнительная
Коммерческая площадь
26,0 m²
Информация о ценах
Цена
€ 585 000
Цена за м²
3 874 €/m²
Энергоэффективность

Потребление энергии

A+

Откройте для себя каждый уголок объекта недвижимости
+23
Доп. опции

Свяжитесь с рекламодателем

Или