Двухкомнатная квартира первый этаж, Icici, Ika, Opatija

€ 950/месяц
2
51 m²
1
1
Да
Терраса
Меблировано

Пометка

Объявление обновлено 02.05.2026
Описание

This description has been translated automatically and may not be accurate

ID: 42646

OPATIJA, IČIĆI modern apartment of 51 m for long-term rent, with a swimming pool and panoramic sea view

In an exceptional location by the sea, in a quiet part of Ičići near Opatija, a modern and luxuriously equipped apartment is for rent located in an apartment building with an elevator.

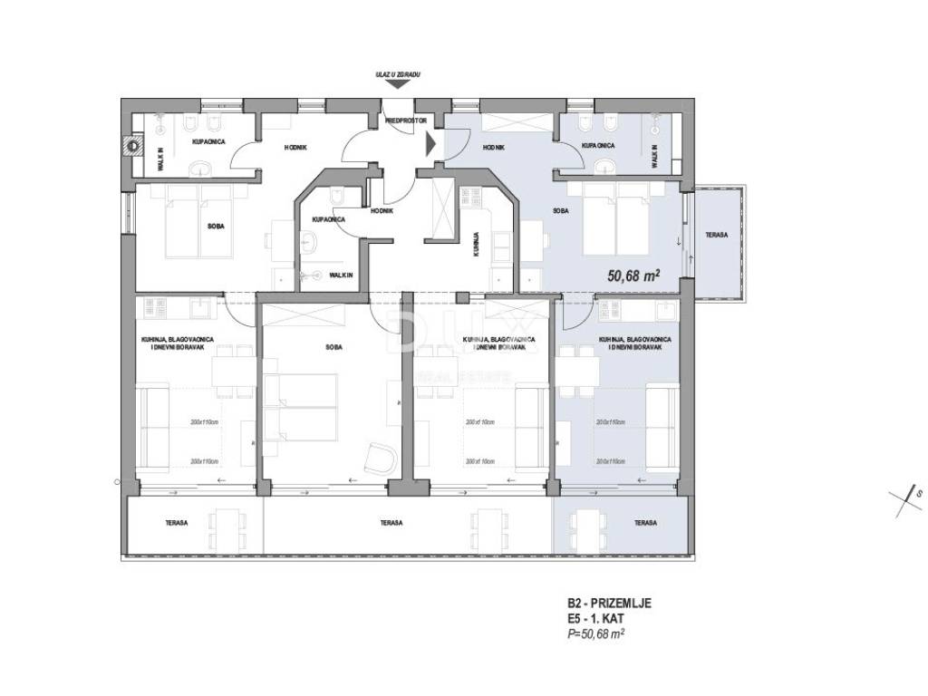
Apartment E5 is located on the 1st floor and has two spacious terraces one with an open and the other with a partial view of the sea and Ičići.

The interior is carefully decorated and functionally arranged. It consists of an entrance area with a wardrobe, one bedroom, a bathroom with a walk-in shower, bidet and toilet, and an elegant living room connected to the kitchen and dining room.

The apartment has a heating and cooling system via a heat pump, and ventilation with recuperation ensures optimal temperature and fresh air throughout the year.

One parking space under video surveillance is available, and tenants can also use the outdoor pool that is shared with other apartments in the building.

Monthly rent: 950 + utilities.

To arrange a property visit, call a trusted agent - consultation in German possible.

Dear clients, the agency commission is charged in accordance with the General Terms and Conditions:
www.dux-nekretnine.hr/opci-uvjeti-poslovanja

ID CODE: 42646

Marko Šutanovac
Agent s licencom
Mob: +385 91 189 8332
Tel: +385 91 480 8808
E-mail: marko@dux-nekretnine.hr
www.dux-opatija.com
Если вы хотите узнать больше, вы можете поговорить с Marko Šutanovac.
Характеристики
Типология
Квартира
Договор
Аренда
Этаж
1 этаж
Лифт
Да
Площадь
51 m²
Помещения
2
Спальни
1
Ванные
1
Меблировано
Да
Балкон
Нет
Терраса
Да
Кондиционер
Автономное, холод/тепло
Информация о ценах
Цена
€ 950/месяц
Цена за м²
19 €/m²
Подробности о расходах
Залог
Неуказана
Энергоэффективность
  • Кондиционер

    Автономное, холод/тепло
  • Энергетическая сертификация

    Не подлежащий
Откройте для себя каждый уголок объекта недвижимости
+23
Доп. опции

Свяжитесь с рекламодателем

Или