Четырехкомнатная квартира новое, второй этаж, Tar-Vabriga

€ 328 700
4
92 m²
2
2
Да
Балкон
Терраса

Пометка

Объявление обновлено 04.02.2026
Описание

This description has been translated automatically and may not be accurate

ID: 42362

ISTRIA, TAR Exclusive 3BR+LR apartment on the 1st floor of a quality new building just 350m from the sea

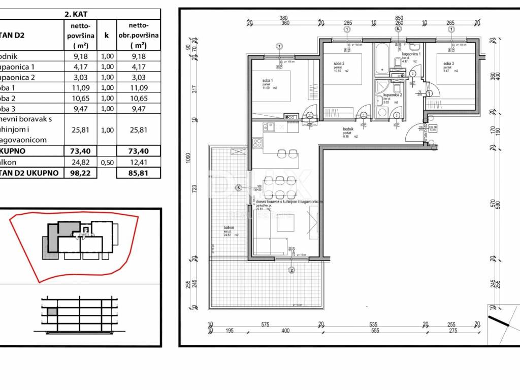
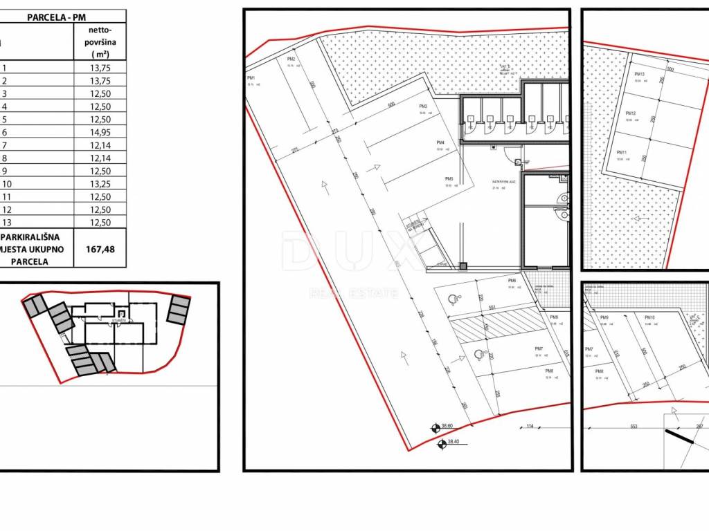
In the quiet village of Tara, just 350m from the sea and a ten-minute walk to the well-maintained beaches, there is a modern, top-quality new building with a total of 13 apartments. This unique apartment is located on the second floor of the building, which covers 85.81 m of living space and represents a combination of luxury, comfort and a superb view. APARTMENT DESCRIPTION Apartment D2 covers a net area of 85.81 m. The layout of the rooms is designed to maximize spaciousness and natural light: * Entrance hall with a designated area for a wardrobe * Open space living room a modernly designed space that combines the living room, kitchen and dining room into one. * Spacious terrace which extends next to the kitchen and dining room, ideal for socializing and relaxing with friends and family. * Then there are three comfortable bedrooms and two bathrooms. TECHNICAL CHARACTERISTICS OF THE BUILDING - The building was designed and built according to the highest construction and energy standards: * Anti-seismic structure * Three-layer PVC joinery * Silent sewage installations * Electric underfloor heating in all rooms of the apartment * Air conditioners in each room * High-quality 10 cm facade insulation (styrofoam and wool) * Elevator in the building * Security doors in the apartments * Top-quality water supply system (German TC pipes) ADDITIONALLY * The apartment has two private parking spaces, included in the price of the apartment. * Storage spaces are available with an additional purchase * Planned completion of construction and move-in: 12/2025. WHY CHOOSE THIS APARTMENT? This apartment is the perfect option for family life, a peaceful vacation in Istria, but also as a safe investment given the attractive location and quality construction. For any additional information or to organize a viewing, please feel free to contact us with confidence.

Dear clients, the agency commission is charged in accordance with the General Business Conditions: www.dux-nekretnine.hr/opci-uvjeti-poslovanja

ID CODE: 42362

Loren Kečan
Agent s licencom
Mob: +385 95 576 8337
Tel: +385 91 480 8808
E-mail: loren@dux-istra.com
www.dux-istra.com
Если вы хотите узнать больше, вы можете поговорить с Loren Kečan.
Характеристики
Типология
Квартира
Договор
Продажа
Этаж
2 этаж
Лифт
Да
Площадь
92 m²
Помещения
4
Спальни
3
Ванные
2
Балкон
Да
Терраса
Да
Кондиционер
Автономное, холод/тепло
Информация о ценах
Цена
€ 328 700
Цена за м²
3 573 €/m²
Энергоэффективность

Потребление энергии

A+

Доп. опции

Свяжитесь с рекламодателем

Или