Четырехкомнатная квартира новое, полуподвал, Centar, Opatija

€ 1
4
181 m²
3
S
Да
Балкон
Терраса

Пометка

Объявление обновлено 06.05.2026
Описание

This description has been translated automatically and may not be accurate

ID: 41198

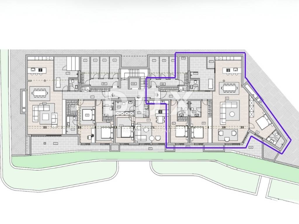
OPATIJA, CENTER - special new building in the center of Opatija, apartment with garage, terrace and gym

Dux represents a top-notch new building that stands out as currently the closest to the sea and the very center of Opatija, and at the same time available on the market. This luxurious building is located in a quiet, dead-end street with no traffic, which provides complete privacy and silence, and yet is ideally located so that you can easily walk, in just a few minutes, to the center of Opatija and the first beaches. Apartment A3 is located in the basement and extends over an impressive 178 m, offering exceptional comfort and a well-thought-out layout. It consists of an entrance hall that leads to two spacious bedrooms, each with its own bathroom, ensuring complete privacy and comfort for the tenants. The central part of the apartment is an open concept that connects the living room, kitchen and dining room into a bright and spacious unit ideal for socializing and relaxing. Next to the living room is another bedroom with its own bathroom. The apartment has two terraces the first is accessible from two bedrooms, while the second is accessed from the living room, providing the perfect space for enjoying the outdoors. In addition, the apartment has a private gym, an additional toilet and two storage rooms that provide ample storage space. This apartment also comes with three garage parking spaces and a storage room, which further increases the practicality and value of this property. The building is equipped with top-quality materials and technologies: - Schüco aluminum joinery (panorama version with thin profiles, tinted triple-layer glass) - first-class Italian ceramics - heat pump for each apartment + underfloor heating throughout the apartment - separate multi-split air conditioning system in each room - top-quality sanitary ware, floors and interior doors - elevator - garage with high ceilings - storage room for each apartment It is especially important to note that the center of Opatija or the first beach is a very gentle downhill slope, within a 5-minute easy walk, while by car it takes literally 60 seconds. This is a truly rare opportunity to buy a property in Opatija that combines a top location, luxurious equipment and impeccable construction quality. To arrange a visit to the property, call the agent with confidence - consultation in German is possible.

Dear clients, the agency commission is charged in accordance with the General Terms and Conditions: www.dux-nekretnine.hr/opci-uvjeti-poslovanja

ID CODE: 41198

Marko Šutanovac
Agent s licencom
Mob: +385 91 189 8332
Tel: +385 91 480 8808
E-mail: marko@dux-nekretnine.hr
www.dux-opatija.com
Если вы хотите узнать больше, вы можете поговорить с Marko Šutanovac.
Характеристики
Типология
Квартира
Договор
Продажа
Этаж
Полуподвал
Лифт
Да
Площадь
181 m²
Помещения
4
Спальни
3
Ванные
3
Балкон
Да
Терраса
Да
Гараж, машиноместа
1 в частный гараж/парковка
Кондиционер
Автономное, холод/тепло
Информация о ценах
Цена
€ 1
Цена за м²
0 €/m²
Энергоэффективность

Потребление энергии

A+

Откройте для себя каждый уголок объекта недвижимости
+5
Доп. опции

Свяжитесь с рекламодателем

Или