Участок под застройку Продажа

€ 118 700
857 m²

Пометка

Объявление обновлено 06.02.2026
Описание

ID: 39301

ISTRA, LABIN - Komforno zemljište s građevinskom dozvolom

Na jugoistočnoj obali Istre, na mjestu gdje se zeleni brežuljci sastaju s morem, tamo gdje se sjedinjuju priroda i baština nalaze se dva gradića slične veličine s različitim, ali međusobno nadopunjujućim karakterom- Labin i Rabac.
Slikoviti grad Labin uzdiže se na brdašcu visokom 320m udaljenom svega četiri kilometara od bijelih šljunčanih plaža u Rapcu. Isprepleten bogatom poviješću i rudarstvom koje je obilježilo ovaj kraj, Labin koji je kratkotrajno bio proglašen samostalnom republikom je danas fascinantan grad proturječnosti; starog i novog, povijesti i sadašnjosti, turizma i umjetnosti.

Nedaleko grada Labina, na prodaju je komforno zemljište s građevinskom dozvolom.
Zemljište se nalazi u pitomom naselju i nudi pritom savršenu ravnotežu ruralnog okruženja i blizinu mora i urbanih sadržaja.
Katastarska čestica je relativno pravokutnog oblika, teren je ravan i čist a elektroenergetska, vodovodna i elektronička komunikacijska infrastruktura nalazi se u blizini zemljišta.
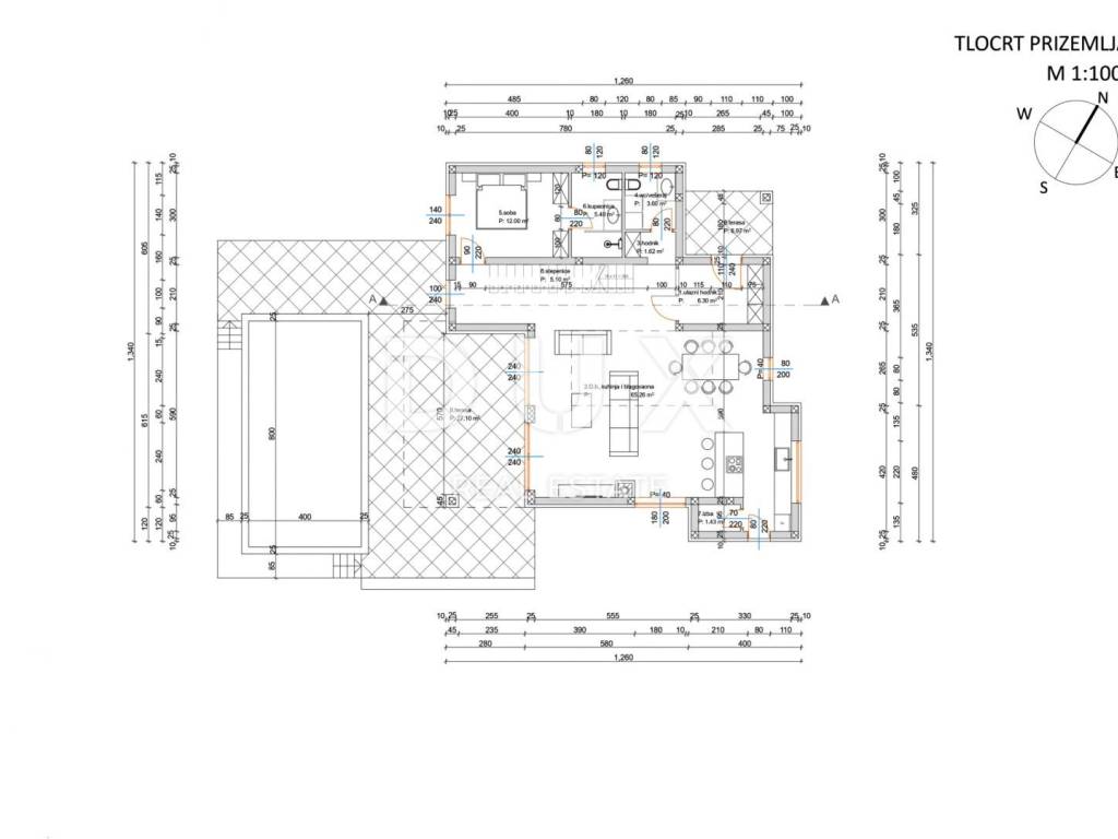
Zemljište ima pravomoćnu građevinsku dozvolu za izgradnju građevine stambene namjene koja se svojim izgledom i stilom uklopa u postojeći ambijent i krajolik i pomoćne građevine- bazena.
Projektirana je kao komforna samostojeća kuća s jednom stambenom jedinicom koja se proteže kroz dvije etaže: prizemlje i kat.

Ovo zemljište pruža izuzetnu priliku za gradnju obiteljskog doma ili kuće za odmor.

Poštovani klijenti, agencijska provizija naplaćuje se u skladu s Općim uvjetima poslovanja:
http://www.dux-nekretnine.hr/opci-uvjeti-poslovanja

ID KOD AGENCIJE: 39301

Iva Zajc
Agent s licencom
Mob: +385 92 235 9472
Tel: +385 91 480 8808
E-mail: iva@dux-istra.com
www.dux-istra.com
Если вы хотите узнать больше, вы можете поговорить с Iva Zajc.
Характеристики
Договор
Продажа
Типология
Участок под застройку
Площадь
857 m²
Информация о ценах
Цена
€ 118 700
Цена за м²
139 €/m²
Откройте для себя каждый уголок объекта недвижимости
+3
Доп. опции

Свяжитесь с рекламодателем

Или