Трехкомнатная квартира первый этаж, Centar, Opatija

€ 1
3
108 m²
2
1
Да
Балкон
Терраса
Меблировано

Пометка

Объявление обновлено 08.01.2026
Описание

This description has been translated automatically and may not be accurate

ID: 38726

OPATIJA, CENTER a unique property, a masterpiece of Austro-Hungarian architecture in the center of Opatija

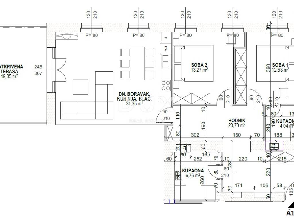
In the very center of Opatija, in a representative Austro-Hungarian building, there is this elegant and completely renovated property of 100 m. Located on the second floor, the apartment consists of an airy living room, a modern kitchen with a dining room, two bedrooms, two bathrooms and an additional guest toilet. High ceilings, quality materials and plenty of natural light create a sophisticated, yet pleasant atmosphere. The interior of the apartment is carefully designed in a contemporary style, combining aesthetics with functionality. The pride of this property is certainly the 25 m terrace, which offers a beautiful panoramic view of the Kvarner Bay ideal for enjoying your morning coffee, an evening rest or socializing with guests. The distance to the sea is only 30 meters, while all the key amenities the Lungomare promenade, restaurants, shops and cultural attractions are literally a few steps away. The apartment is located in an exceptional location with excellent transport connections. Volosko is a two-minute drive away, while Lovran is less than 10 minutes away by car. This property is an ideal opportunity for those looking for a combination of historical elegance and modern life on the Adriatic coast. To arrange a visit to the property, call the agent with confidence - consultation in German is possible.

Dear clients, the agency commission is charged in accordance with the General Terms and Conditions: www.dux-nekretnine.hr/opci-uvjeti-poslovanja

ID CODE: 38726

Patrik Hrštić
Agent s licencom
Mob: +385 91 270 3979
Tel: +385 91 480 8808
E-mail: patrik@dux-nekretnine.hr
www.dux-opatija.com

Marko Šutanovac
Agent s licencom
Mob: +385 91 189 8332
Tel: +385 91 480 8808
E-mail: marko@dux-nekretnine.hr
www.dux-opatija.com
Если вы хотите узнать больше, вы можете поговорить с Patrik Hrštić.
Характеристики
Типология
Квартира
Договор
Продажа
Этаж
1 этаж
Лифт
Да
Площадь
108 m²
Помещения
3
Спальни
2
Ванные
2
Меблировано
Да
Балкон
Да
Терраса
Да
Кондиционер
Автономное, холод/тепло
Информация о ценах
Цена
€ 1
Цена за м²
0 €/m²
Энергоэффективность
  • Кондиционер

    Автономное, холод/тепло
  • Энергетическая сертификация

    Не подлежащий
Откройте для себя каждый уголок объекта недвижимости
+13
Доп. опции

Свяжитесь с рекламодателем

Или