Трехкомнатная квартира новое, первый этаж, Vodice

€ 236 500
3
82 m²
1
1
Терраса

Пометка

Объявление обновлено 16.01.2026
Описание

This description has been translated automatically and may not be accurate

ID: 36753

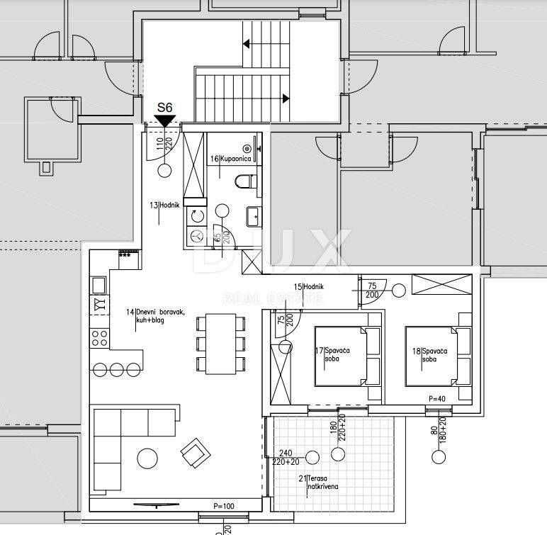
ŠIBENIK, VODICE - Apartment S6 in a new building in a great location

Apartment for sale in Vodice near Šibenik. The apartment with a total living area of 75.35 m2 is located on the first floor of a small residential building with 6 units. It consists of a hallway, bathroom, two bedrooms, a spacious living room, dining room and kitchen. The living room leads to a covered terrace ideal for socializing with friends and family. The apartment has one parking space. The total usable area of the apartment with all accessories is 82.95 m2. Quality materials were used in the construction, and attention was paid to detail during construction. The property is only 1 km from the town center and the sea. VODICE - The charming nightlife town and beach of Vodice is a small tourist destination located 10 kilometers north of Šibenik. It is popular among young visitors looking for lively places. Vodice boasts great hotels, beaches and a rich nightlife offer. The name "Vodice" was first mentioned in written works in 1402, although it is known that people lived there in Roman times. The place was named "Vodice" because of the abundance of water and wells. Nearby is the islet of Prvić, the city of Split is 69 km away, Zadar is 59 km away, and the nearest airport is 49 km away.

Dear clients, the agency commission is charged in accordance with the General Terms and Conditions: www.dux-nekretnine.hr/opci-uvjeti-poslovanja

ID CODE: 36753

Ivan Bego
Agent pripravnik
Mob: +385 91 312 1121
Tel: +385 91 480 8808
E-mail: ivan@dux-dalmacija.com
www.dux-nekretnine.hr
Если вы хотите узнать больше, вы можете поговорить с Ivan Bego.
Характеристики
Типология
Квартира
Договор
Продажа
Этаж
1 этаж
Площадь
82 m²
Помещения
3
Спальни
2
Ванные
1
Балкон
Нет
Терраса
Да
Кондиционер
Автономное, холод/тепло
Информация о ценах
Цена
€ 236 500
Цена за м²
2 884 €/m²
Энергоэффективность
  • Год постройки

    2025
  • Состояние

    Новое / На стадии строительства
  • Кондиционер

    Автономное, холод/тепло
  • Энергетическая сертификация

    Не подлежащий
Откройте для себя каждый уголок объекта недвижимости
+6
Доп. опции

Свяжитесь с рекламодателем

Или