Трехкомнатная квартира первый этаж, Luka, Пореч

€ 380 763
3
73 m²
1
1
Терраса

Пометка

Объявление обновлено 04.02.2026
Описание

This description has been translated automatically and may not be accurate

ID: 32418

ISTRIA, POREČ - Comfortable apartment near the city center

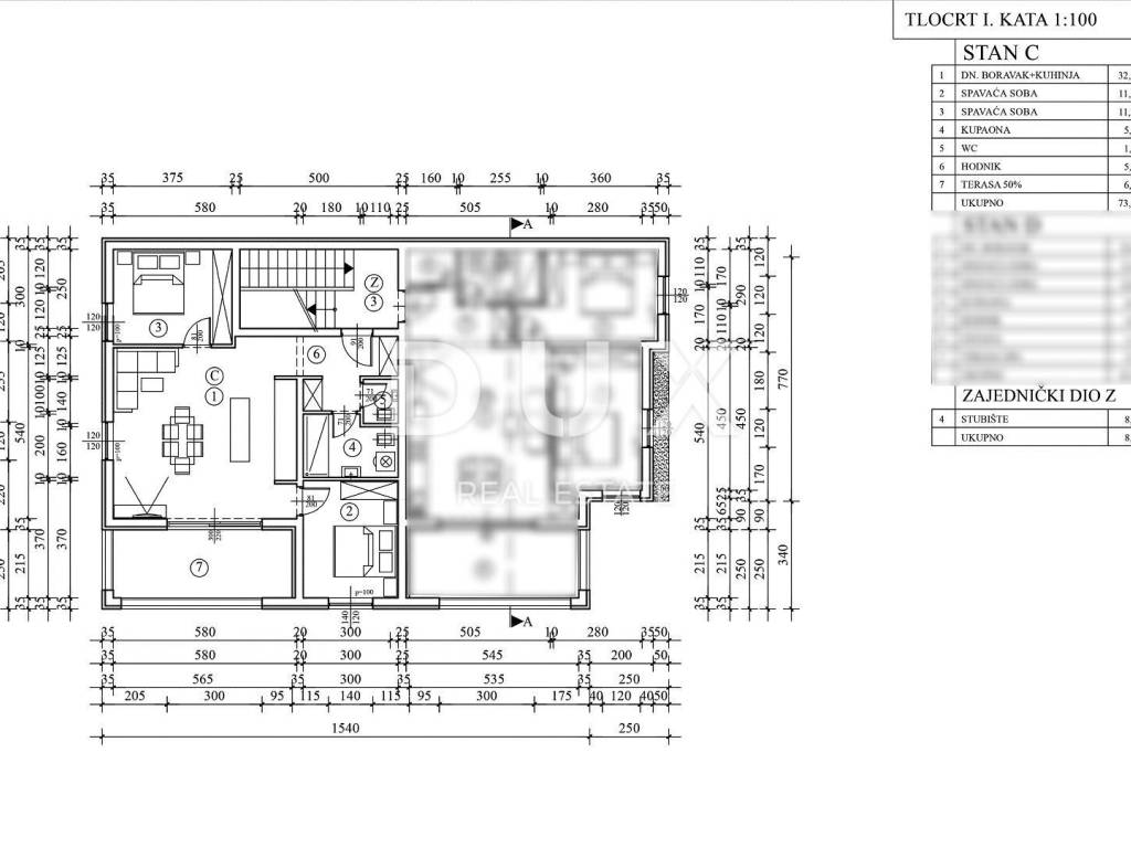
Bathed in a pleasant Mediterranean climate, located in the heart of the western Istrian coast, the ancient town of Poreč and its coastline of preserved natural beauty, landscaped parks, pine and oak groves that reach the sea itself, along which clear sea, beaches, bays and islands are spread over area of 139 km and consists of 58 settlements. With the identity of an urban coastal city, Poreč is a city of culture, sports, entertainment, tourism and genuine hospitality. One of the most attractive cities of Croatian tourism that uniquely combines the natural beauty of Istria, rich cultural and historical heritage and the most modern amenities of a top tourist destination. The harmony of the old town core, which is a cultural monument, with one of the most famous Istrian cultural monuments, the Euphrasian Basilica, which is on the UNESCO World Heritage List, and the most organized and best equipped tourist resorts on the Adriatic forms a mosaic of unforgettable experiences. Poreč is also a city that is much more than a summer destination of sun and sea. Poreč is a city tailored to man. A city where there is a constant impulse for better living conditions and greater progress in various spheres. A city that is a pleasant, safe and well-organized place to live where everyone can find their place, a city without surcharges with high social sensitivity for all generations. Not far from the center of Poreč, a residential building is under construction, which extends through the ground floor and two floors and contains a total of five residential units. The architectural style of the building is modern, with clean lines and a minimalist design. Durable and reliable materials are used in the construction, which guarantee long-term satisfaction and security of housing. The space planning of each floor was carried out in detail, which resulted in a high-quality layout of the rooms, which guaranteed the full use of the space. The object of sale is an apartment with an area of 73.40 m, located on the first floor of the building. It consists of two bedrooms, a bathroom, a guest toilet, a hallway and an open concept space that unites the living room, dining room and kitchen with access to a covered terrace. The apartment has one parking spot. This apartment within walking distance of shopping, cultural, educational and recreational facilities is an ideal opportunity for a comfortable family life as well as an investment for the purpose of tourist rental. The planned deadline for the completion of the works and the handover of the property is scheduled for the end of 2025. The stated price of the property refers to the final level of execution without furniture, which allows for final decoration according to one's own wishes and preferences. The seller of the property in question is a legal entity.

Dear clients, the agency commission is charged in accordance with the General Business Conditions: www.dux-nekretnine.hr/opci-uvjeti-poslovanja

ID CODE: 32418

Iva Zajc
Agent s licencom
Mob: +385 92 235 9472
Tel: +385 91 480 8808
E-mail: iva@dux-istra.com
www.dux-istra.com
Если вы хотите узнать больше, вы можете поговорить с Iva Zajc.
Характеристики
Типология
Квартира
Договор
Продажа
Этаж
1 этаж
Площадь
73 m²
Помещения
3
Спальни
2
Ванные
1
Балкон
Нет
Терраса
Да
Кондиционер
Автономное, холод/тепло
Информация о ценах
Цена
€ 380 763
Цена за м²
5 216 €/m²
Энергоэффективность
  • Год постройки

    2024
  • Кондиционер

    Автономное, холод/тепло
  • Энергетическая сертификация

    Не подлежащий
Откройте для себя каждый уголок объекта недвижимости
+7
Доп. опции

Свяжитесь с рекламодателем

Или