Трехкомнатная квартира новое, первый этаж, Privlaka

€ 467 000
3
129 m²
2
1
Терраса

Пометка

Объявление обновлено 05.05.2026
Описание

This description has been translated automatically and may not be accurate

ID: 32293

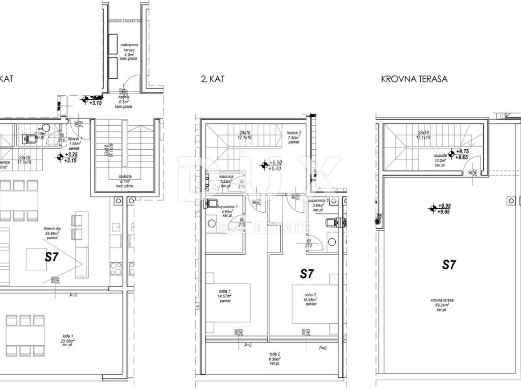
ZADAR, PRIVLAKA - Amazing Two-Storied Penthouse with a Spacious Roof Terrace 120 Meters from the Sea with an Enchanting Sea View! S7

Immerse yourself in the world of luxury and elegance in this incredible two-story penthouse offering a spectacular view of the Adriatic Sea. Located just 120 meters from the sparkling beach, this penthouse offers the perfect blend of modern design and natural beauty, creating an ideal space to enjoy coastal living. This luxurious penthouse covers 129.99 m2 of net living space, carefully designed to offer you the perfect balance between elegance and functionality. On the first floor, you will be greeted by a spacious living room, filled with natural light thanks to large glass surfaces that allow a view of the sea. Here, every moment is special, whether you are relaxing alone or in the company of your loved ones. On the same floor, there is also an elegantly designed toilet, perfectly harmonized with the modern interior. Climbing to the second floor, you reach a space that is a real paradise for rest. Two spacious bedrooms exude sophistication and comfort, perfect for relaxing after a long day. Each bedroom has its own luxurious bathroom, equipped with the most modern sanitary ware that satisfies even the most demanding tastes. Here you can feel the ultimate level of comfort, while every detail contributes to the feeling of warmth and elegance. The unique roof terrace of 59.24 m2 is the absolute gem of this penthouse, offering you unobstructed views of the sea and stunning sunsets that will take your breath away. This is the perfect place to enjoy relaxing evenings under the starry sky or to organize unforgettable gatherings with family and friends. The Penthouse boasts two spacious loggias that extend your living space outside, allowing you to enjoy the sea breeze and magnificent views of the surrounding area. Loggias are perfect for morning coffee, relaxing with a book or enjoying the natural surroundings in the evening. All rooms are air-conditioned, and underfloor heating extends throughout the entire penthouse, ensuring a pleasant atmosphere throughout the year. Electric blinds and mosquito nets on PVC carpentry guarantee ease of use and protection from unwanted external influences, while the top quality of construction and the specific architecture of the building emphasize the exclusivity of this space. The Penthouse comes with one parking space, which is a valuable amenity in this area. Construction is scheduled for completion in the spring of 2026, giving you plenty of time to plan your perfect move to this oasis of luxury. Do not miss the opportunity to become the owner of this incredible penthouse! Contact us today to learn more about this unique opportunity to live your dream life on the Adriatic coast. Call us and reserve your piece of luxury that you will be proud to call home.

Dear clients, the agency commission is charged in accordance with the General Business Conditions www.dux-nekretnine.hr/opci-uvjeti-poslovanja

ID CODE: 32293

Josip Šestan
Agent s licencom
Mob: +385 91 799 6986
Tel: +385 91 480 8808
E-mail: josip@dux-dalmacija.com
www.dux-dalmacija.com
Если вы хотите узнать больше, вы можете поговорить с Josip Šestan.
Характеристики
Типология
Квартира
Договор
Продажа
Этаж
1 этаж
Площадь
129 m²
Помещения
3
Спальни
2
Ванные
2
Балкон
Нет
Терраса
Да
Кондиционер
Автономное, холод/тепло
Информация о ценах
Цена
€ 467 000
Цена за м²
3 620 €/m²
Энергоэффективность
  • Год постройки

    2024
  • Состояние

    Новое / На стадии строительства
  • Кондиционер

    Автономное, холод/тепло
  • Энергетическая сертификация

    Не подлежащий
Откройте для себя каждый уголок объекта недвижимости
+20
Доп. опции

Свяжитесь с рекламодателем

Или