Отдельный дом на одну семью 320 m², Novi Vinodolski

€ 570 000
5+
320 m²
3+
Да
Балкон
Терраса
Меблировано

Пометка

Объявление обновлено 02.05.2026
Описание

This description has been translated automatically and may not be accurate

ID: 31938

KLENOVICA - semi-detached house/villa 320m2 with a view of the sea + surroundings 400m2

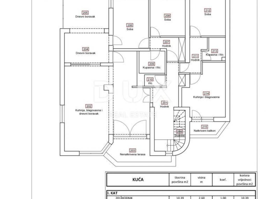
The house/villa was built about 10 years ago, it was decorated with a lot of detail and the owner's love, and the entire interior exudes luxury. The house consists of GROUND FLOOR + 1ST FLOOR + 2ND FLOOR connected by an internal staircase. - GROUND FLOOR - total area 71.46m2 HALLWAY 1 HALLWAY 2 KITCHEN DINING ROOM AND LIVING ROOM ROOM WC BOILER ROOM WINE STORE STAIRCASE STORAGE 1 STORAGE 2 - 1ST FLOOR total area 133.57 m2 HALLWAY 1 KITCHEN DINING ROOM AND LIVING ROOM UNCOVERED TERRACE LIVING ROOM 1 LIVING ROOM 2 ROOMS 1 HALLWAY 2 ROOMS 2 BATHROOMS AND TOILET TOILET HALLWAY 3 ROOMS 3 BATHROOMS AND TOILET KITCHEN AND DINING ROOM COVERED BALCONY STAIRCASE - 2ND FLOOR total area 116.98m2 HALLWAY 1 KITCHEN AND DINING ROOM GALLERY BATHROOM AND TOILET ROOM 1 LODGING UNCOVERED TERRACE KITCHEN BATHROOM AND TOILET ROOM 2 UNCOVERED BALCONY 1 ROOM 3 HALLWAY 2 ROOM 4 UNCOVERED BALCONY 2 BATHROOMS AND TOILET KITCHEN AND DINING ROOM UNCOVERED BALCONY GARDEN: The yard has been landscaped and maintained for many years. It contains a fireplace and an underground cistern, the so-called gutters for collecting rainwater There is also room for a swimming pool in the garden. Certainly a nice property for family life, but also suitable as an investment in the form of tourism. This property is 340m from the sea as the crow flies, or 400m by car (about 2 minutes). Dear clients, the agency commission is charged in accordance with the General terms and conditions of business: www.dux-nekretnine.hr/opci-uvjeti-poslovanja Dear potential buyers, tenants and lessees, viewing the property that you are interested in and in which you have an interest is possible only and exclusively with the signing of the Real Estate Brokerage Agreement, for the purpose of protecting the owner of the property from visits by unregistered persons, and in accordance with the Data Protection Act and the Real Estate Brokerage Act. When viewing each property, the potential buyer/lessee/lessee is obliged to fill out and sign the Real Estate Brokerage Agreement, which states the following: - basic information about the potential buyer/lessee/lessee - basic information about the agency - the amount of the agency commission The agency commission for the buyer is 3 % (+25% VAT) of the total agreed purchase price. The agency commission for the lessee is one monthly rent (+ 25% VAT).

ID CODE: 31938

Patrik Hrštić
Agent s licencom
Mob: +385 91 270 3979
Tel: +385 91 480 8808
E-mail: patrik@dux-nekretnine.hr
www.dux-opatija.com
Если вы хотите узнать больше, вы можете поговорить с Patrik Hrštić.
Характеристики
Типология
Отдельный дом на одну семью
Договор
Продажа
Этаж
1
Лифт
Да
Площадь
320 m² | коммерческая 720 m²
Помещения
5+
Спальни
7
Ванные
3+
Меблировано
Да
Балкон
Да
Терраса
Да
Кондиционер
Автономное, холод/тепло
Деталь поверхности

Жилой фонд

Этаж
1
Площадь
320,0 m²
Коэффициент
100%
Тип площади
Основная
Коммерческая площадь
320,0 m²

Участок

Этаж
Нулевой этаж
Площадь
400,0 m²
Коэффициент
100%
Тип площади
Дополнительная
Коммерческая площадь
400,0 m²
Информация о ценах
Цена
€ 570 000
Цена за м²
792 €/m²
Энергоэффективность
  • Кондиционер

    Автономное, холод/тепло
  • Энергетическая сертификация

    Не подлежащий
Откройте для себя каждый уголок объекта недвижимости
+20
Доп. опции

Свяжитесь с рекламодателем

Или