map icon

Отдельный дом на одну семью 139 m², новая, Malinska-Dubašnica

Malinska-Dubašnica
€ 750 000
4
139 m²
3+
Да
Балкон

Пометка

Объявление обновлено 17.11.2025
Описание

This description has been translated automatically and may not be accurate

ID: 31155

KRK ISLAND, MALINSKA - semi-detached house with swimming pool under construction

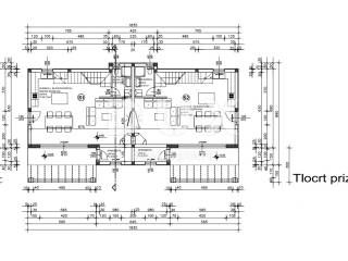
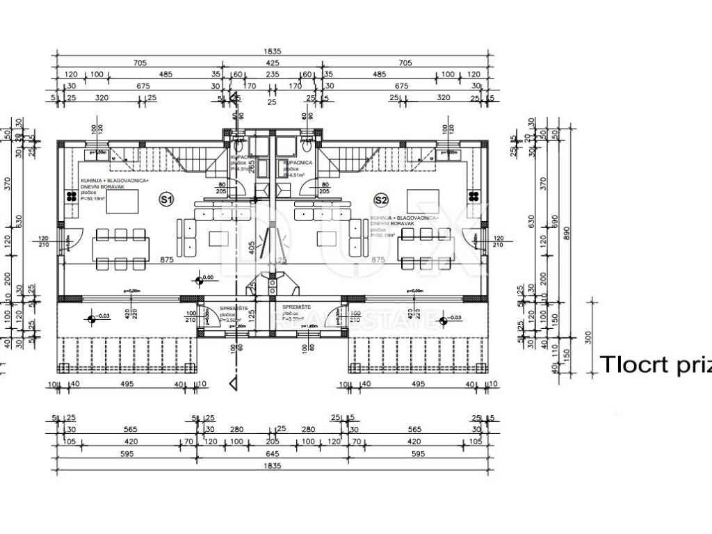
Each half of the house covers 139.69 m and is designed to provide maximum comfort and a luxurious lifestyle. Ground floor On the ground floor there is a spacious and modernly equipped kitchen combined with an elegant living room, creating an open space ideal for family gatherings and gatherings with friends. Also, on the ground floor there is a bathroom for guests, equipped with the highest quality sanitary equipment. First floor There are three comfortable bedrooms, each with its own bathroom. These practical and luxurious solutions ensure privacy and comfort for every family member or guest. Outdoor Space Each half of the house comes with its own pool, providing the perfect space to relax and enjoy the warm summer days. In addition to the pool, each unit has two parking spaces. Construction and Materials The house is currently under construction, and the planned completion of the works is at the end of 2025. During construction, first-class materials are used, ensuring high quality construction and durability. Heating will be provided by means of heat pumps, while multi-split air conditioning systems will be used for cooling, which will ensure an optimal temperature throughout the year. Investor This project is realized by a proven investor with many years of experience in construction on the island of Krk. Their reputation guarantees reliability and high quality performance of every detail. This semi-detached house in Malinska is an ideal home for those looking for a combination of luxury, comfort and a modern lifestyle in a wonderful Mediterranean environment. Malinska and its entire area is called Dubašnica and is located in the western part of the island of Krk. Until the 15th century, Dubašnica was almost devoid of permanent inhabitants, as was the area south of it, almost to the town of Krk. The name of the region comes from oak or oak, because there are rich forests and pastures with some arable land. Dubašnica was mainly an area of Omišalj, already before the 12th century, but part of it was also held by the Krk people. Malinska, as the center of Dubašnica, was once an island port for the export of wood and a favorite tourist destination of the Viennese aristocracy. It was mentioned in the 15th century as a good anchorage where ships took shelter during strong winds, especially from the south. With the arrival of the steamship in 1866, Malinska went from being a port for the export of wood to a climatic health resort thanks to the mild climate with about 260 sunny days a year. Today, it is one of the island's strongest tourist destinations, known for its numerous beaches and developed hotel industry, as well as family tourism. The beaches in the Malinska-Dubašnica municipality are connected by numerous walkways and form a unique natural entity. The layout of the beaches varies from well-maintained concrete plateaus to wild, rocky, adventurous entrances to the sea, but also many more hidden and hidden places for swimming in small coves that are worth visiting. The beaches stretch along the western part of the island of Krk: they start along the Paradise road that connects Malinska and Njivice, and end behind the romantic town of Porto. Malinska is one of the destinations that families with children love the most. In addition to extremely good connections and proximity, primarily to Rijeka and Zagreb, Malinska, through its offer of family and hotel accommodation, beaches and catering facilities with acceptable prices, has established itself over the years as a TOP choice for many families. In addition, the security and peace offered by Malinska are a special bonus for all parents looking for a real vacation. If you want your children to experience magic on vacation, where you can all carefree walk, ride bikes or spend days by the crystal clear sea, surrounded by nature without too much noise - visit Malinska. A summer holiday can be much more than soaking up the sun and listening to the waves: active holidays are becoming more and more popular - from cycling, running and hiking to sailing and water sports. Due to its mild climate, clean sea and lush Mediterranean vegetation, as well as the abundance of paths and walkways, Malinska has become a destination for many lovers of outdoor sports and active vacations. Mediterranean culture, as the culture of the Croatian island, is immersed in family, architecture, music and food - its cultivation, processing, preparation and consumption. As the local population engaged in fishing, growing olives, vines, figs and sheep, the tradition was nurtured and proudly lives on today.

Dear clients, the agency commission is charged in accordance with the General Business Conditions www.dux-nekretnine.hr/opci-uvjeti-poslovanja

ID CODE: 31155

Ivan Vinger
Agent s licencom
Mob: +385 91 601 3692
Tel: +385 91 480 8808
E-mail: ivan.vinger@dux-nekretnine.hr
www.dux-opatija.com
Если вы хотите узнать больше, вы можете поговорить с Ivan Vinger.
Характеристики
Типология
Отдельный дом на одну семью
Договор
Продажа
Лифт
Да
Площадь
139 m²
Помещения
4
Спальни
3
Ванные
3+
Балкон
Да
Терраса
Нет
Другие характеристики
  • Бассейн
Информация о ценах
Цена
€ 750 000
Цена за м²
5 396 €/m²
Энергоэффективность
  • Год постройки

    2025
  • Состояние

    Новое / На стадии строительства
  • Энергетическая сертификация

    Не подлежащий
Откройте для себя каждый уголок объекта недвижимости
+15
Доп. опции

Свяжитесь с рекламодателем

Или