Двухкомнатная квартира новое, нулевой этаж, Nin

€ 190 872
2
53 m²
1
T
Терраса

Пометка

Объявление обновлено 04.02.2026
Описание

This description has been translated automatically and may not be accurate

ID: 29772

ZADAR, NIN - Apartment S3 under construction with a garden and sea view

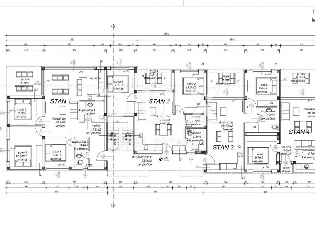
An apartment under construction in Nin near Zadar is for sale. The apartment with a total living area of 41.40 m2 is located on the ground floor of a small residential building with 10 residential units. It consists of a living room, kitchen and dining room, bedroom, bathroom and terrace of 9.10 m2. The apartment also has a garden of 22 m2 and one parking space in the courtyard of the building, so the total area with accessories is 53.02 m2. High-quality materials were used in the construction, such as thermal insulation on the facade and aluminum joinery. Parquet floors were used for flooring, and heating and cooling are air conditioning. The planned completion date of the construction is the end of 2025. The property is located in a prime location, only 400m from the sea. The historic town of Nin is an extremely popular tourist destination, given the beautiful beaches in the area and the proximity of the urban center of Zadar, which is only 15 km away. Nin is also home to the longest sandy beach in Croatia, called Queen's Beach. In the Nin lagoon there is also a site with medicinal mud Peloid, whose beneficial properties were known even in Roman times.

Dear clients, the agency commission is charged in accordance with the General Terms and Conditions www.dux-nekretnine.hr/opci-uvjeti-poslovanja

ID CODE: 29772

DUX Nekretnine
Mob: +385 91 480 8808
Tel: +385 51 518 174
E-mail: info@dux-nekretnine.hr
www.dux-nekretnine.hr
Характеристики
Типология
Квартира
Договор
Продажа
Этаж
Нулевой этаж
Площадь
53 m²
Помещения
2
Спальни
1
Ванные
1
Балкон
Нет
Терраса
Да
Кондиционер
Автономное, холод/тепло
Информация о ценах
Цена
€ 190 872
Цена за м²
3 601 €/m²
Энергоэффективность
  • Год постройки

    2024
  • Состояние

    Новое / На стадии строительства
  • Кондиционер

    Автономное, холод/тепло
  • Энергетическая сертификация

    Не подлежащий
Откройте для себя каждый уголок объекта недвижимости
+10
Доп. опции

Свяжитесь с рекламодателем

Или