Производственное помещение Продажа

€ 364 000
5+
670 m²

Пометка

Объявление обновлено 04.02.2026
Описание

ID: 29239

ISTRA, LABIN - Poslovna zgrada

Grad Labin se nalazi na istočnoj obali Istre kroz koji prolazi državna cesta koja spaja Rijeku i Pulu. Po starosti, trajnosti i povijesnom značaju do danas je trebao postati velegrad, ali je ostao ljupki gradić kojemu je prošlost generator budućeg razvoja- labinski rudnik, projekt Podzemnog grada, jedini je rudnik na moru u kojem na +30 metara iznad razine mora postoji izgrađena podzemna infrastruktura neprocjenjive vrijednosti, potpuno sigurna jer je isklesana u živoj stijeni. Udaljen je 5 kilometara od turističkog naselja Rabac. Na dominantnom brežuljku je smješten Stari Grad s pogledom na kvarnersku obalu, a u njegovom podnožju Podlabin gdje se ulice sijeku pod pravim kutom stvarajući privid savršenog reda i pravilnosti.

Upravo je Grad Labin stvorio poslovnu zonu koja svakodnevno privlači nove investitore, pružajući im pritom vrhunske infrastrukturne uvjete za razvoj modernih tvrtki današnjice. Prostire se na površini od 37,76 ha i udaljena je 2 km od centra grada Labina.
Kako to i priliči najboljima, mnogobrojne tvrtke čije je glavno obilježje visoko sofisticirana proizvodnja i suradnja s najjačim svjetskim imenima i brendovima, dio su jedne od najboljih poslovnih zona u Hrvatskoj. U poslovnoj zoni, trećoj po redu najrazvijenijih poslovnih zona u zemlji, većinom se bavi proizvodnim ili IT djelatnostima te u manjem obimu građevinskim i uslužnim djelatnostima.

U toj pozitivnoj poduzetničkoj klimi, na prodaju je poslovna zgrada.
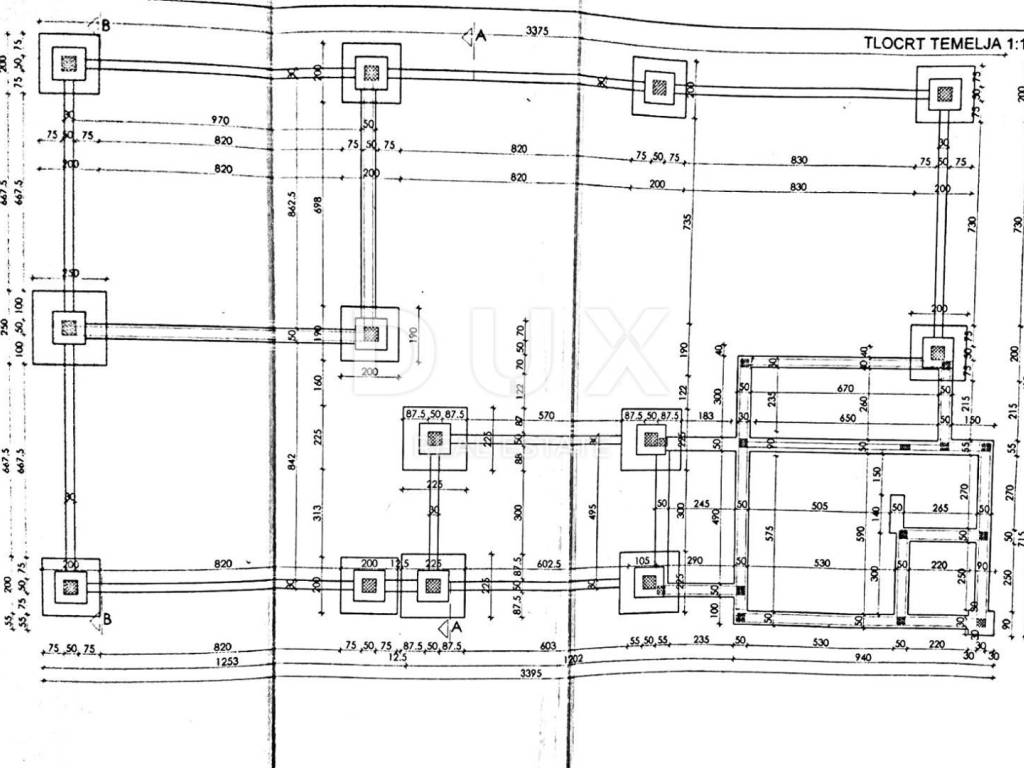
Prostrana zgrada izgrađena je na ograđenom zemljištu površine 2.250 m a raspoređena je na dvije etaže; prizemlje i kat.
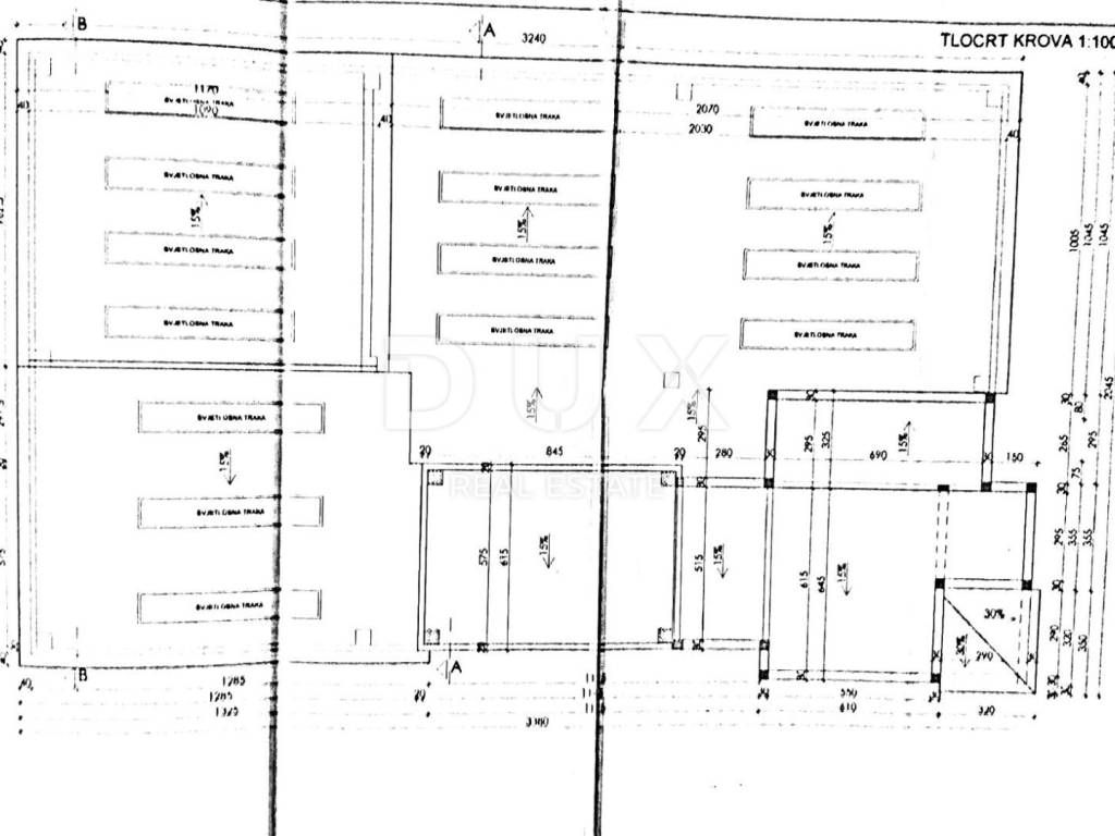
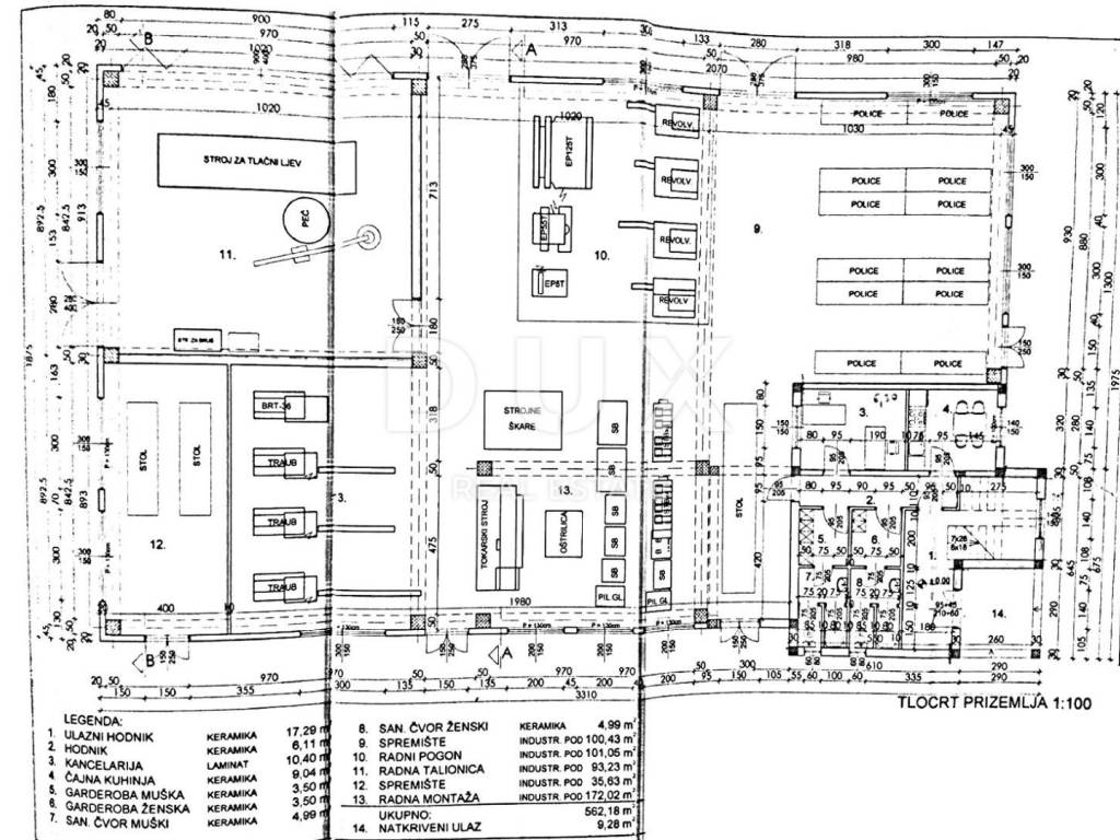
Prizemlje površine 562,18 m se sastoji od radnog pogona, radne montaže, skladišta, kancelarije, čajne kuhinje i sanitarnih čvoreva i garderobe.
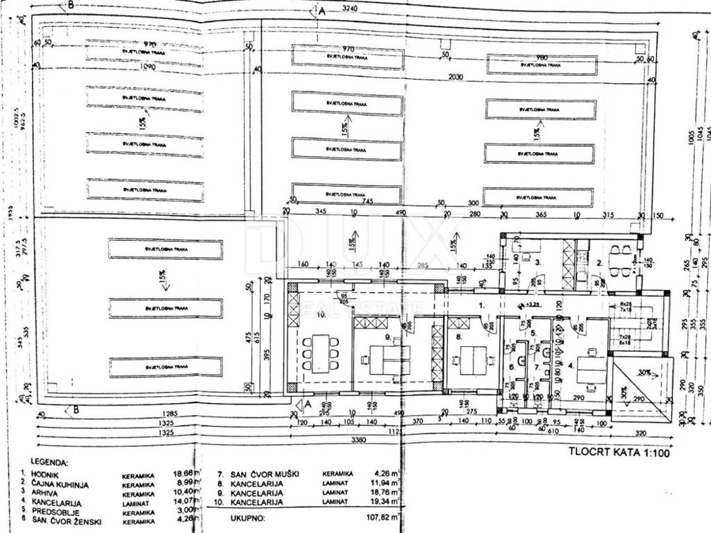
Kat površine 107,82 m se sastoji od četiri kancelarije, arhive, čajne kuhinje i sanitarnih čvorova.

S obzirom na veličinu i svoju poziciju, ova poslovna zgrada predstavlja izuzetnu priliku za investiciju.

Zgrada je u izgradnji te se navedena cijena odnosi na postojeće stanje vidljivo na fotografijama.

Poštovani klijenti, agencijska provizija naplaćuje se u skladu s Općim uvjetima poslovanja
www.dux-nekretnine.hr/opci-uvjeti-poslovanja

ID KOD AGENCIJE: 29239

Iva Zajc
Agent s licencom
Mob: +385 92 235 9472
Tel: +385 91 480 8808
E-mail: iva@dux-istra.com
www.dux-istra.com
Если вы хотите узнать больше, вы можете поговорить с Iva Zajc.
Характеристики
Договор
Продажа
Типология
Производственное помещение
Площадь
670 m²
Помещения
5+ помещения
Этаж
Нулевой этаж
Информация о ценах
Цена
€ 364 000
Цена за м²
543 €/m²
Откройте для себя каждый уголок объекта недвижимости
+16
Доп. опции

Свяжитесь с рекламодателем

Или