1/9


Трехкомнатная квартира новое, нулевой этаж, Centar, Krk
Krk€ 530 000
Объявление обновлено 17.11.2025
Описание
ID: 21173
ID CODE: 21173
Dean Karabaić
Agent pripravnik
Mob: +385 91 933 0465
Tel: +385 91 480 8808
E-mail: dean@dux-nekretnine.hr
www.dux-krk.com
Характеристики
- Типология
- Квартира
- Договор
- Продажа
- Этаж
- 1
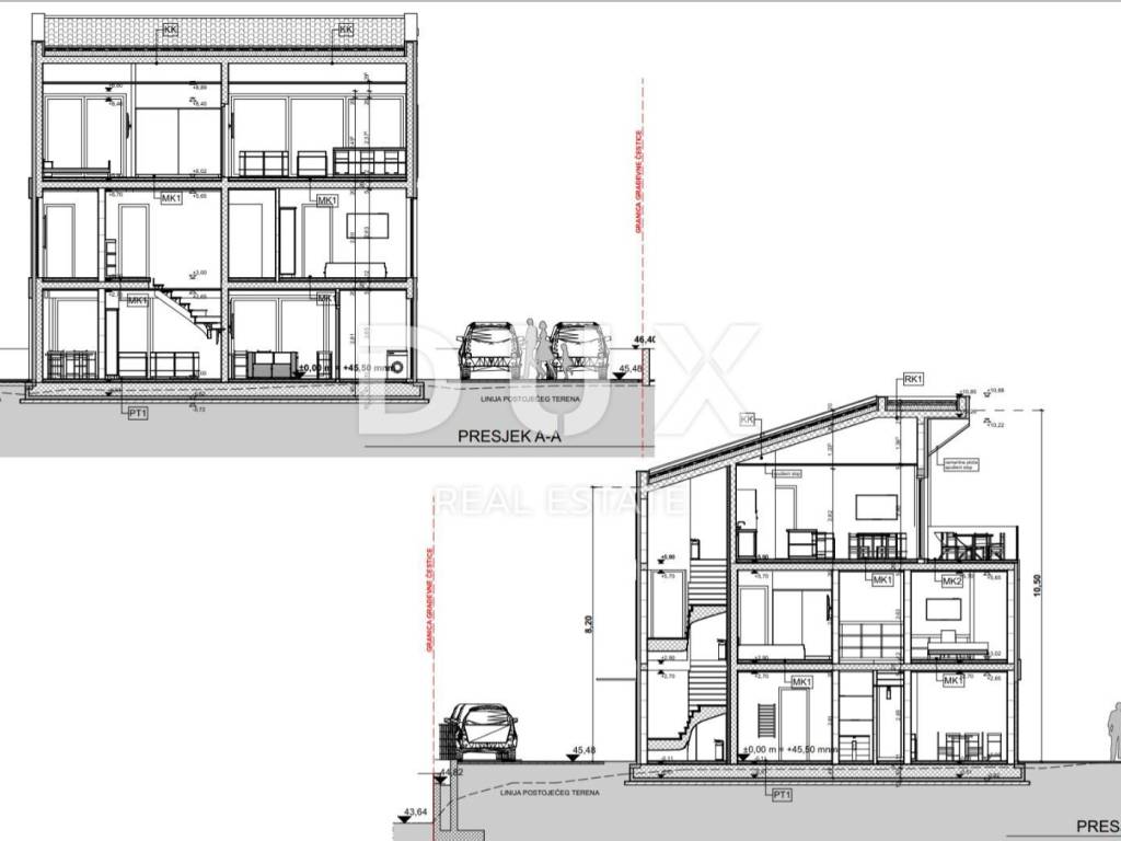
- Площадь
- 79 m² | коммерческая 209 m²
- Помещения
- 3
- Спальни
- 2
- Ванные
- 3
- Балкон
- Нет
- Терраса
- Нет
Деталь поверхности
Жилой фонд
- Этаж
- 1
- Площадь
- 79,0 m²
- Коэффициент
- 100%
- Тип площади
- Основная
- Коммерческая площадь
- 79,0 m²
Участок
- Этаж
- Нулевой этаж
- Площадь
- 130,0 m²
- Коэффициент
- 100%
- Тип площади
- Дополнительная
- Коммерческая площадь
- 130,0 m²
Информация о ценах
- Цена
- € 530 000
- Цена за м²
- 2 536 €/m²
Откройте для себя каждый уголок объекта недвижимости
Доп. опции