Отдельный дом на одну семью 176 m², новая, Labin

€ 620 000
5+
176 m²
3

Пометка

Объявление обновлено 04.02.2026
Описание

This description has been translated automatically and may not be accurate

ID: 20755

ISTRIA, LABIN - New construction of modern design with swimming pool

On the southeastern coast of Istria, at the place where the green hills meet the sea, where nature and heritage come together, there are two towns of similar size, but with different but mutually complementary characters - Labin and Rabac.
The picturesque town of Labin rises on a hill 320 m high, only five kilometers from the white pebble beaches in Rabac. Intertwined with rich history and mining that marked this region, Labin, which was declared an independent republic for a short time, is today a fascinating city of contradictions; old and new, history and present, tourism and art.

In the vicinity of the town of Labin, there is a new building of modern design with a swimming pool for sale.
It is located in a quiet settlement surrounded by family houses and holiday homes on the edge of the construction area with a view of greenery.
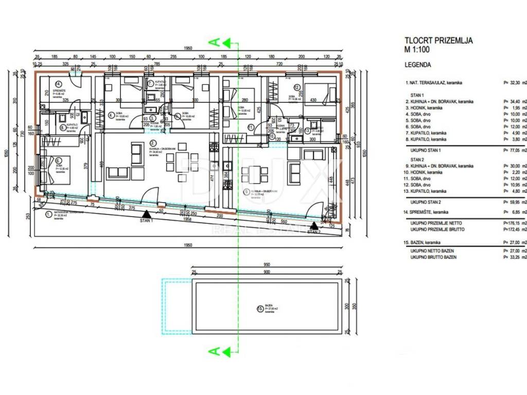
The house is characterized by quality construction and contemporary, modern design. The living space is clearly defined and maximally used and contains two residential units.
The larger residential unit consists of a living area with a kitchen, dining room and living room connected to the outside space by glass walls, three bedrooms, two bathrooms and a storage room.
The smaller residential unit consists of a living area with a kitchen, dining room and living room connected to the outside space by glass walls, two bedrooms and a bathroom.
Cooling/heating of the house is ensured by a floor heating system via a heat pump and air conditioners.
Next to the house, there is a 27 m swimming pool with a paved sunbathing area and two parking spaces in the fenced and landscaped garden.
The property also has one-third co-ownership of the children's playground and additional parking for guests next to the house.
The stated price refers to the turnkey phase, and there is also the possibility of buying a fully equipped and furnished property.

Given the convenient location, this property is an ideal opportunity for family life or as an investment for rental for tourist purposes.

Dear clients, the agency commission is charged in accordance with the General Terms and Conditions:
www.dux-nekretnine.hr/opci-uvjeti-poslovanja

ID CODE: 20755

Iva Zajc
Agent s licencom
Mob: +385 92 235 9472
Tel: +385 91 480 8808
E-mail: iva@dux-istra.com
www.dux-istra.com

Rene Nemarnik
Agent s licencom
Mob: +385 91 737 5328
Tel: +385 91 480 8808
E-mail: rene@dux-nekretnine.hr
www.dux-nekretnine.hr
Если вы хотите узнать больше, вы можете поговорить с Iva Zajc.
Характеристики
Типология
Отдельный дом на одну семью
Договор
Продажа
Этаж
1
Площадь
176 m² | коммерческая 974 m²
Помещения
5+
Спальни
5
Ванные
3
Балкон
Нет
Терраса
Нет
Кондиционер
Автономное, холод/тепло
Другие характеристики
  • Бассейн
Деталь поверхности

Жилой фонд

Этаж
1
Площадь
176,0 m²
Коэффициент
100%
Тип площади
Основная
Коммерческая площадь
176,0 m²

Участок

Этаж
Нулевой этаж
Площадь
798,0 m²
Коэффициент
100%
Тип площади
Дополнительная
Коммерческая площадь
798,0 m²
Информация о ценах
Цена
€ 620 000
Цена за м²
637 €/m²
Энергоэффективность
  • Год постройки

    2023
  • Состояние

    Новое / На стадии строительства
  • Кондиционер

    Автономное, холод/тепло
  • Энергетическая сертификация

    Не подлежащий
Откройте для себя каждый уголок объекта недвижимости
+4
Доп. опции

Свяжитесь с рекламодателем

Или