Участок под застройку Продажа

€ 95 000
742 m²

Пометка

Объявление обновлено 04.02.2026
Описание

ID: 18488

ISTRA, BARBAN - Zemljište s građevinskom dozvolom

Barban je malo slikovito srednjevjekovno naselje akropolskog tipa na južnom dijelu istočne Istre, smješteno iznad doline rijeke Raše. Dobro očuvana arhitektonska zdanja iz razdoblja baroka i gotike, freske i glagoljski zapisi, crkve, palače i gradske zidine, viteška igra Trka na prstenac, tradicionalna fešta od vina i festival smokava čine Barban izuzetno atraktivnim. Općina Barban, koja ima izlaz na more u Raškome zaljevu, zauzima površinu od 100 km. Osim Barbana, u prekrasnom zelenilu Barbanštine, smješteno je još 31 naselje.

U mirnom i pitomom naselju općine Barban, na prodaju je zemljište s građevinskom dozvolom.
Zemljište se nalazi na mirnoj lokaciji, zadnje u zoni gradnje te pruža privatnost i mir. Pravilnog je oblika, teren je ravan i djelomično očišćen te se sva potrebna infrastruktura nalazi u blizini.
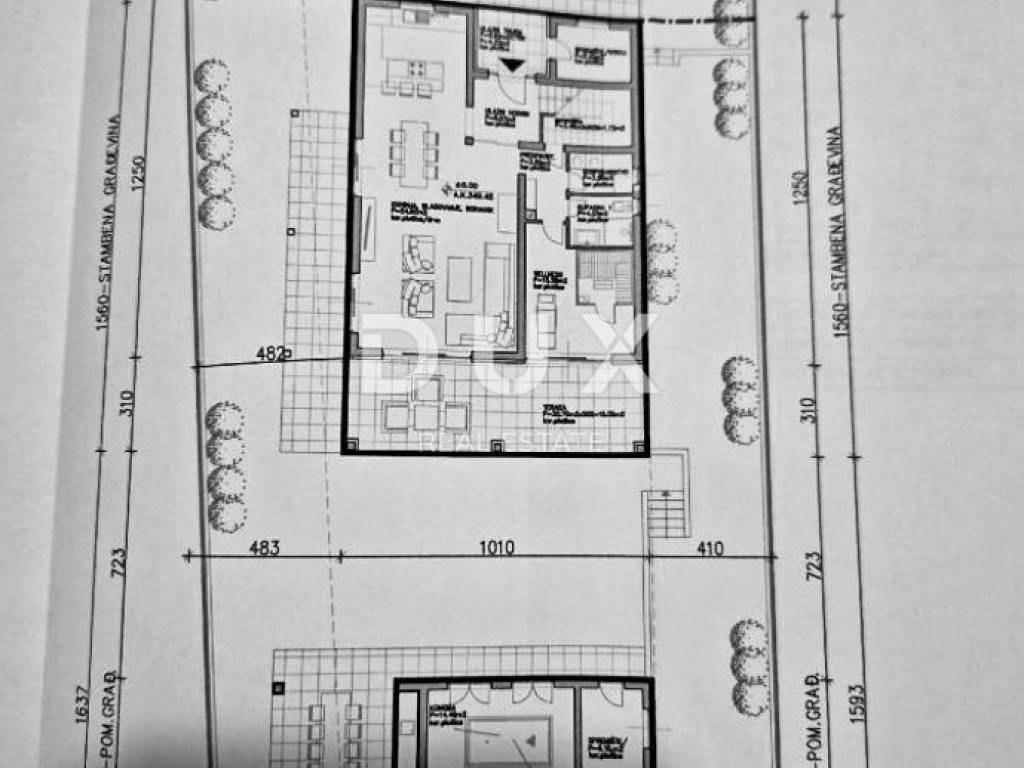
Zemljište ima pravomoćnu građevinsku dozvolu za objekt netto površine 212 m s pomoćnim objektom.

Ovo zemljište je savršena prilika za gradnju obiteljskog doma ili kuće za odmor.

Poštovani klijenti, agencijska provizija naplaćuje se u skladu s Općim uvjetima poslovanja
www.dux-nekretnine.hr/opci-uvjeti-poslovanja

ID KOD AGENCIJE: 18488

Iva Zajc
Agent s licencom
Mob: +385 92 235 9472
Tel: +385 91 480 8808
E-mail: iva@dux-istra.com
www.dux-istra.com
Если вы хотите узнать больше, вы можете поговорить с Iva Zajc.
Характеристики
Договор
Продажа
Типология
Участок под застройку
Площадь
742 m²
Информация о ценах
Цена
€ 95 000
Цена за м²
128 €/m²
Откройте для себя каждый уголок объекта недвижимости
+6
Доп. опции

Свяжитесь с рекламодателем

Или