Участок под застройку Продажа

€ 280 000
1 830 m²

Пометка

Объявление обновлено 04.02.2026
Описание

ID: 10965

ISTRA, BARBAN Zemljište s projektom i pravomoćnom dozvolom!

Istra, Barban - Obnovljena kamena kuća s dvorištem. Barban je prekrasan povijesni gradić smješten u istočnoj Istri udaljen svega 25 kilometara od najvećeg grada u Istri Pule te samo 15 km od Labina. Poznat po viteškoj igri Trka na prstenac koja se tradicionalno održava u kolovozu, a svoje korijene vuče iz davne 1696. godine.
Barban se ponosi i dobro očuvanim arhitektonskim zdanjima iz razdoblja baroka i gotike, freskama i glagoljskim zapisima. Mjesto je na kojem se u novije vrijeme sve više grade kamene, ali i moderne vile, a odlikuje ga i osjećaj istre / mediterana kakav je nekad bio.

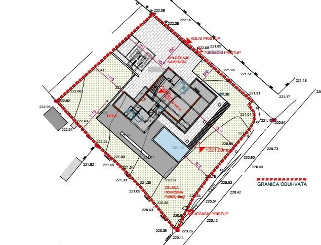
Na svega 5km od udaljenosti od centra Barbana, u mirnom mjestu sa svega stotinjak kuća smjestilo se ovo građevinsko zemljište. Pravilnog je oblika te je ukupne površine 1830m2. Svega je 20m udaljeno od asfaltiranog puta no u putu koji vodi do samog zemljišta vlasnici imaju suvlasništvo. Okruženo je obiteljskim kućama i vilama za odmor te je idealno za gradnju jedne takve građevine za koju trenutni vlasnici posjeduju svu potrebnu dokumentaciju.
U posjedu su pravomoćne građevinske dozvole, arhitektonskog rješenja, geodetskog projekta, potvrde glavnog projekta te posjedovnog lista. Voda se nalazi na parceli te je Vodni doprinos plaćen kao i komunalije u cijelosti.
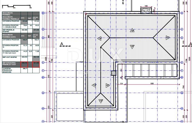
Prema plaćenom projektu vila će se proteže na prizemlje i kat te se sastoji od ulaznog prostora, dnevnog boravka s kuhinjom i blagovaonicom, četiri spavaće sobe s vlastitim kupaonicama, gostinjske kupaonice, wellness-a, spremišta, izbe te natkrivenih i otkrivenih terasa.

Odlična prilika za brz početak gradnje prekrasne vile na za to, dobroj lokaciji!

Za sve dodatne informacije nazovite: 095-391-9185 Aldin Begić ili 099-391-9185 Deniro Osmanović

Poštovani klijenti, agencijska provizija naplaćuje se u skladu s Općim uvjetima poslovanja: www.dux-nekretnine.hr/opci-uvjeti-poslovanja

ID KOD AGENCIJE: 10965

Aldin Begić
Agent pripravnik
Mob: +385 95 391 9185
Tel: +385 91 480 8808
E-mail: aldin@dux-istra.com
www.dux-istra.com

Deniro Osmanović
Agent pripravnik
Mob: +385 99 371 3802
Tel: +385 91 480 8808
E-mail: deniro@dux-istra.com
www.dux-istra.com
Если вы хотите узнать больше, вы можете поговорить с Aldin Begić.
Характеристики
Договор
Продажа
Типология
Участок под застройку
Площадь
1 830 m²
Информация о ценах
Цена
€ 280 000
Цена за м²
153 €/m²
Откройте для себя каждый уголок объекта недвижимости
+10
Доп. опции

Свяжитесь с рекламодателем

Или