Четырехкомнатная квартира пятый этаж, Žnjan - Stobreč, Split

€ 970 000
4
131 m²
1
5
Да

Пометка

Объявление обновлено 15.04.2026
Описание

This description has been translated automatically and may not be accurate

ID: 4819

Angelus nekretnine offers for sale a three-bedroom apartment of 131.83 m2 in NEW CONSTRUCTION in Split - Žnjan district

LOCATION
The apartment is located in a quiet environment, in a very attractive location, in the southeastern part of Split and has excellent connections with other parts of the city. An exceptionally urban area of the city that has everything you need for a comfortable life. In the immediate vicinity are the Pazdigrad Elementary School, kindergartens, various shops, children's parks, a pharmacy, a health center. The distance from the sea and the nearest beach is less than 300 m, as well as from the promenade on Žnjan. The building is far from important communal and transport points: Public city transport - 100 m, City center (Riva) - 4 km, Zagreb-Split highway - 20 km, Split airport - 25 km.

DESCRIPTION:
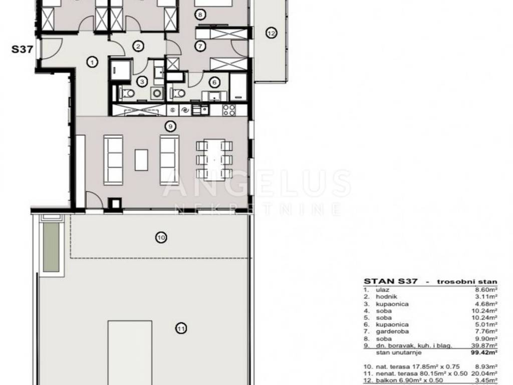
A three-room apartment in a new building with a total net area of 131.83 m is for sale, located on the fifth floor of a residential building, oriented south-east-north. The apartment consists of an entrance hall, kitchen and dining room with living room, three bedrooms, wardrobe, two bathrooms, one toilet, one balcony, one covered and one uncovered terrace. The building of modern architecture and high energy efficiency is built according to modern standards from high-quality materials with all the necessary equipment. The building has two basement garages with parking spaces, ground floor, four floors and a superstructure. There is one entrance with an elevator that connects all floors. The price of a parking space in the basement is EUR 2.2000 per m2. The building has a southern orientation and is exposed to the sun all day, and at the same time offers a beautiful open view of the sea.

The investor is in the process of obtaining a building permit. The planned construction start date is the end of 2025. Payment is made according to construction phases: 30% of the price when signing the preliminary contract, 40% upon completion of the concrete construction of the building and 30% for the facade.

The property has great potential, whether it is a place for a peaceful and quality life or as an investment for the purpose of renting.

For all questions and information or to arrange an appointment for a real estate inspection, contact us today, and at the link https://angelusnekretnine.hr/o-nama you can view our General Terms and Conditions.

Your Angelus nekretnine d.o.o.

ID CODE: 4819

Venći Čulić Meić
Agent s licencom
Mob: +385 91 429 0199
Tel: +385 21 587 441
E-mail: venci@angelusnekretnine.hr
www.angelusnekretnine.hr
Если вы хотите узнать больше, вы можете поговорить с Venći Čulić Meić.
Характеристики
Типология
Квартира
Договор
Продажа
Этаж
5 этаж
Лифт
Да
Площадь
131 m²
Помещения
4
Спальни
3
Ванные
1
Балкон
Нет
Терраса
Нет
Кондиционер
Автономное, холод/тепло
Информация о ценах
Цена
€ 970 000
Цена за м²
7 405 €/m²
Энергоэффективность
  • Кондиционер

    Автономное, холод/тепло
  • Энергетическая сертификация

    Не подлежащий
Доп. опции

Свяжитесь с рекламодателем

Или