Отдельный дом на одну семью 143 m², новая, Malinska-Dubašnica

€ 625 000
5
143 m²
3
Да
Балкон
Терраса

Пометка

Объявление обновлено 25.02.2026
Описание

This description has been translated automatically and may not be accurate

ID: k-551

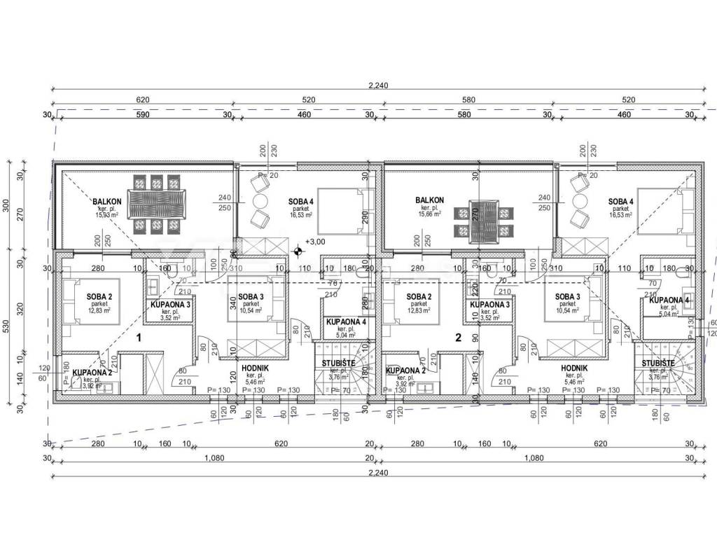
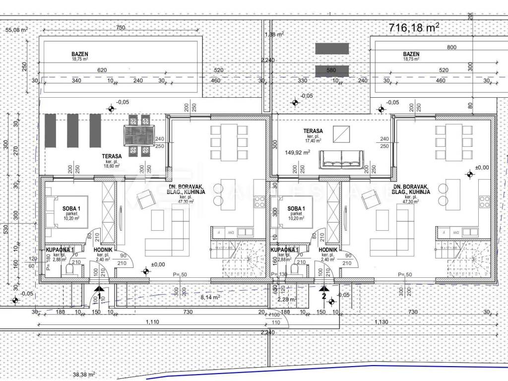
Real estate on the island of Krk, Malinska - a new semi-detached house with a swimming pool and sea view in a prime location is for sale. The house is spread over two floors, covering a total of 143 m2 of living space. The ground floor has an entrance hall, toilet, bedroom, kitchen and dining area, as well as a living room with access to a covered terrace and garden. On the first floor there are three bedrooms, each with its own bathroom and access to a terrace with a sea view. The beautifully landscaped garden has a swimming pool with a sundeck, a summer kitchen and space for two parking spaces. It is worth noting additional features - quality materials and equipment that include high-quality ceramic floor coverings, quality sanitary ware, multi-split air conditioning, underfloor heating with a heat pump, installed high-quality PVC joinery and security doors. The property is currently under construction, and the planned completion is expected in mid-2025. It is located in an attractive location near beautiful beaches and the center with all necessary amenities. This property is subject to VAT.
Vala Estate Malinska agency will provide you with a safe and transparent transfer of ownership and all necessary documentation.

ID CODE: k-551

VALA ESTATE d.o.o.
Mob: +385 99 444 0550
Tel: +385 51 568 917
E-mail: info@vala-estate.com
www.vala-estate.com
Характеристики
Типология
Отдельный дом на одну семью
Договор
Продажа
Этаж
1
Лифт
Да
Площадь
143 m² | коммерческая 243 m²
Помещения
5
Спальни
4
Ванные
3
Балкон
Да
Терраса
Да
Другие характеристики
  • Бассейн
  • Железная дверь
Деталь поверхности

Жилой фонд

Этаж
1
Площадь
143,0 m²
Коэффициент
100%
Тип площади
Основная
Коммерческая площадь
143,0 m²

Участок

Этаж
Нулевой этаж
Площадь
100,0 m²
Коэффициент
100%
Тип площади
Дополнительная
Коммерческая площадь
100,0 m²
Информация о ценах
Цена
€ 625 000
Цена за м²
2 572 €/m²
Энергоэффективность
  • Год постройки

    2025
  • Состояние

    Новое / На стадии строительства
  • Энергетическая сертификация

    Не подлежащий
Откройте для себя каждый уголок объекта недвижимости
+17
Доп. опции

Свяжитесь с рекламодателем

Или