map icon

Отдельный дом на одну семью 165 m², Malinska-Dubašnica

Malinska-Dubašnica
€ 890 000
5
165 m²
3
Да
Балкон
Терраса

Пометка

Объявление обновлено 17.11.2025
Описание

This description has been translated automatically and may not be accurate

ID: k-530

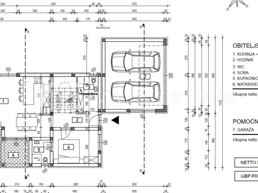
Real estate island Krk, Malinska - new detached house for sale with pool and garage in a great location. The house is located on a plot of 548 m2 and is spread over two floors with a total of 166 m2 of living space. On the ground floor there is an entrance area, a toilet, a bedroom with its own bathroom, a kitchen and a dining area, and a living room with access to a covered terrace and garden. On the first floor there is a bathroom, three bedrooms, one of which has its own dressing room and bathroom, and one with access to a common terrace with a view of the sea. There is a swimming pool with a sunbathing area, a summer kitchen and a garage with two parking spaces in the beautifully landscaped garden. It is worth noting additional features - quality materials and equipment that include floor coverings made of high-quality ceramics, quality sanitary facilities, multisplit air conditioning, underfloor heating, built-in high-quality PVC joinery and security doors. The property is currently under construction, and the planned completion is expected at the end of 2025. It is located in an attractive location only 850 m from beautiful beaches.
Agency Vala Estate Malinska will provide you with a safe and transparent transfer of ownership and all necessary documentation.

ID CODE: k-530

VALA ESTATE d.o.o.
Mob: +385 99 444 0550
Tel: +385 51 568 917
E-mail: info@vala-estate.com
www.vala-estate.com
Характеристики
Типология
Отдельный дом на одну семью
Договор
Продажа
Этаж
1
Лифт
Да
Площадь
165 m² | коммерческая 565 m²
Помещения
5
Спальни
4
Ванные
3
Балкон
Да
Терраса
Да
Гараж, машиноместа
1 в частный гараж/парковка
Другие характеристики
  • Бассейн
  • Железная дверь
Деталь поверхности

Жилой фонд

Этаж
1
Площадь
165,0 m²
Коэффициент
100%
Тип площади
Основная
Коммерческая площадь
165,0 m²

Участок

Этаж
Нулевой этаж
Площадь
400,0 m²
Коэффициент
100%
Тип площади
Дополнительная
Коммерческая площадь
400,0 m²
Информация о ценах
Цена
€ 890 000
Цена за м²
1 575 €/m²
Энергоэффективность
  • Год постройки

    2024
  • Энергетическая сертификация

    Не подлежащий
Откройте для себя каждый уголок объекта недвижимости
+10
Доп. опции

Свяжитесь с рекламодателем

Или