Отдельный дом на одну семью 115 m², новая, Malinska-Dubašnica

€ 495 000
4
115 m²
2
Терраса

Пометка

Объявление обновлено 03.04.2026
Описание

This description has been translated automatically and may not be accurate

ID: k-541

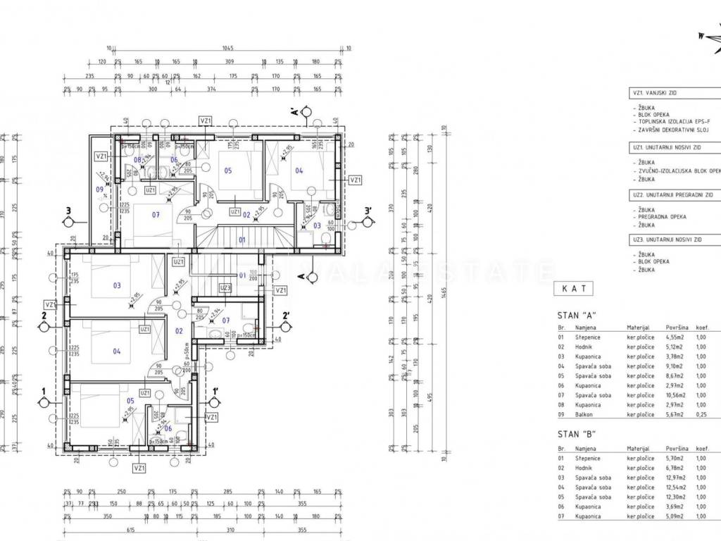
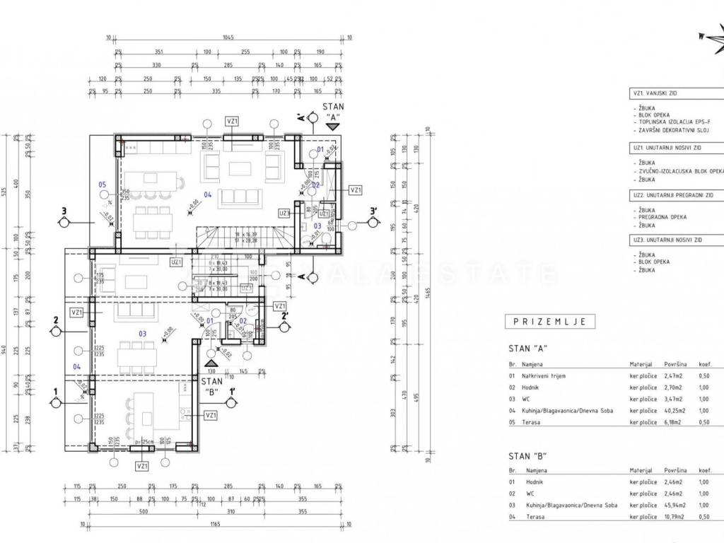
Real estate island Krk, Malinska - for sale is a new modern semi-detached house in an excellent location only 750 m from the sea and the beach. The house occupies 115.78 m2 of living space distributed on the ground floor and first floor, which are connected by internal stairs. The ground floor includes an entrance hall, a toilet, a kitchen with a dining room and a living room from which there is access to a covered terrace and garden. On the first floor there is a hallway, two bathrooms and three bedrooms with a beautiful view of the sea. There is a swimming pool with a sunbathing area and an engine room with space for pool equipment on a beautifully landscaped garden of approx. 100 m2. It is worth noting additional features - quality materials and equipment that include floor coverings made of high-quality ceramics, quality sanitary facilities, multisplit air conditioning in all rooms, electric underfloor heating, built-in high-quality PVC exterior carpentry with electric blinds, burglar-proof doors and a facade with insulation. It also has two parking spaces at the entrance to the yard. The property is currently under construction, and the planned completion is expected at the end of 2025.
Agency Vala Estate Malinska will provide you with a safe and transparent transfer of ownership and all necessary documentation.

ID CODE: k-541

VALA ESTATE d.o.o.
Mob: +385 99 444 0550
Tel: +385 51 568 917
E-mail: info@vala-estate.com
www.vala-estate.com
Характеристики
Типология
Отдельный дом на одну семью
Договор
Продажа
Этаж
1
Площадь
115 m² | коммерческая 215 m²
Помещения
4
Спальни
3
Ванные
2
Балкон
Нет
Терраса
Да
Другие характеристики
  • Бассейн
  • Железная дверь
Деталь поверхности

Жилой фонд

Этаж
1
Площадь
115,0 m²
Коэффициент
100%
Тип площади
Основная
Коммерческая площадь
115,0 m²

Участок

Этаж
Нулевой этаж
Площадь
100,0 m²
Коэффициент
100%
Тип площади
Дополнительная
Коммерческая площадь
100,0 m²
Информация о ценах
Цена
€ 495 000
Цена за м²
2 302 €/m²
Энергоэффективность
  • Год постройки

    2025
  • Состояние

    Новое / На стадии строительства
  • Энергетическая сертификация

    Не подлежащий
Откройте для себя каждый уголок объекта недвижимости
+10
Доп. опции

Свяжитесь с рекламодателем

Или