Трехкомнатная квартира новое, первый этаж, Dobrinj

€ 265 000
3
70 m²
1
1
Да
Балкон

Пометка

Объявление обновлено 01.05.2026
Описание

This description has been translated automatically and may not be accurate

ID: a-1054

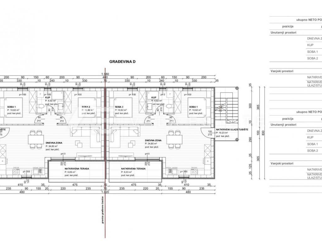
Real estate Island Krk, Soline bay - for sale is an apartment on the first floor of a new building consisting of a total of six residential units. The apartment has a living area of 70 m2 and consists of an entrance hall, two bedrooms, bathroom, kitchen, dining room and living room with access to a covered terrace of 10 m2. It has one parking space in the common courtyard of the building. Quality materials and equipment are used for the construction, including ceramic floor coverings, quality sanitary ware, electric underfloor heating in the bathroom, room air conditioning, built-in high-quality ALU and PVC carpentry and burglar-proof doors. It is located in a great location near the sea, beautiful beaches and the center with all the necessary facilities. The property is currently under construction, with planned completion expected by the end of 2025.
Agency Vala Estate Malinska will provide you with a safe and transparent transfer of ownership and all necessary documentation.

ID CODE: a-1054

VALA ESTATE d.o.o.
Mob: +385 99 444 0550
Tel: +385 51 568 917
E-mail: info@vala-estate.com
www.vala-estate.com
Характеристики
Типология
Квартира
Договор
Продажа
Этаж
1 этаж
Лифт
Да
Площадь
70 m²
Помещения
3
Спальни
2
Ванные
1
Балкон
Да
Терраса
Нет
Кондиционер
Автономное, холод/тепло
Другие характеристики
  • Железная дверь
Информация о ценах
Цена
€ 265 000
Цена за м²
3 786 €/m²
Энергоэффективность
  • Год постройки

    2025
  • Состояние

    Новое / На стадии строительства
  • Кондиционер

    Автономное, холод/тепло
  • Энергетическая сертификация

    Не подлежащий
Откройте для себя каждый уголок объекта недвижимости
+19
Доп. опции

Свяжитесь с рекламодателем

Или