Трехкомнатная квартира новое, первый этаж, Njivice, Omišalj

€ 430 000
3
68 m²
1
1
Да
Балкон
Терраса

Пометка

Объявление обновлено 28.01.2026
Описание

This description has been translated automatically and may not be accurate

ID: a-1010

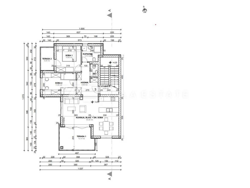
Real estate Island Krk, Njivice - for sale is an apartment with an excellent layout on the first floor of a new semi-detached building consisting of a total of four residential units. The apartment has a living area of 68.14 m2 and consists of two bedrooms, one of which has access to the terrace, bathroom, toilet, kitchen, dining room and living room with access to a large covered terrace with a view of the sea. It has one parking space in the common courtyard of the building. Quality materials and equipment are used for construction, including ceramic floor coverings, quality sanitary facilities, room air conditioning, underfloor heating, built-in high-quality PVC joinery and security doors. It is located in a quiet location only 500 m from the sea and beautiful beaches. The property is currently under construction, and the planned completion is expected at the end of 2024.
Agency Vala Estate Malinska will provide you with a safe and transparent transfer of ownership and all necessary documentation.

ID CODE: a-1010

VALA ESTATE d.o.o.
Mob: +385 99 444 0550
Tel: +385 51 568 917
E-mail: info@vala-estate.com
www.vala-estate.com
Характеристики
Типология
Квартира
Договор
Продажа
Этаж
1 этаж
Лифт
Да
Площадь
68 m²
Помещения
3
Спальни
2
Ванные
1
Балкон
Да
Терраса
Да
Другие характеристики
  • Железная дверь
Информация о ценах
Цена
€ 430 000
Цена за м²
6 324 €/m²
Энергоэффективность
  • Год постройки

    2024
  • Состояние

    Новое / На стадии строительства
  • Энергетическая сертификация

    Не подлежащий
Откройте для себя каждый уголок объекта недвижимости
+11
Доп. опции

Свяжитесь с рекламодателем

Или