Отдельный дом на одну семью 160 m², Poličnik

€ 420 000
4
160 m²
2

Пометка

Объявление обновлено 01.05.2026
Описание

This description has been translated automatically and may not be accurate

ID: 2394

A house with a swimming pool and ancillary facilities is for sale in Lovinac near Zadar.

The house is on a plot of 1315m2

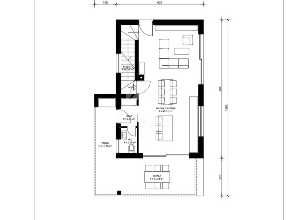
It has a ground floor and an upper floor. On the ground floor there is a living room with kitchen and dining room, a bathroom and a covered terrace. An internal staircase leads to the first floor where there are three bedrooms and a bathroom.

In the yard there is a swimming pool and an outbuilding.

The construction in question has begun and is being sold in this condition.

Documentation OK, possible agreement.

Real estate agent
Gordana Zigun
091 940 7882

Zadar is a quiet yet dynamic city on the Adriatic coast. It is rich in numerous historical attractions, social activities and Mediterranean specialties. It is excellently connected to various national parks and the islands of the Zadar archipelago, but also to a variety of airlines that fly from Zemunik Airport in Zadar. All this contributes significantly to the choice of foreign tourists for tourist arrivals, as well as for the purchase of real estate in these areas.

ID CODE: 2394

Stella Mar
Mob: +385 91 320 4955
E-mail: info@stellamar.hr
www.stellamar.hr
Характеристики
Типология
Отдельный дом на одну семью
Договор
Продажа
Этаж
1
Площадь
160 m² | коммерческая 1 475 m²
Помещения
4
Спальни
3
Ванные
2
Балкон
Нет
Терраса
Нет
Другие характеристики
  • Бассейн
Деталь поверхности

Жилой фонд

Этаж
1
Площадь
160,0 m²
Коэффициент
100%
Тип площади
Основная
Коммерческая площадь
160,0 m²

Участок

Этаж
Нулевой этаж
Площадь
1 315,0 m²
Коэффициент
100%
Тип площади
Дополнительная
Коммерческая площадь
1 315,0 m²
Информация о ценах
Цена
€ 420 000
Цена за м²
285 €/m²
Энергоэффективность
  • Энергетическая сертификация

    Не подлежащий
Откройте для себя каждый уголок объекта недвижимости
+21
Доп. опции

Свяжитесь с рекламодателем

Или