1/8


Отдельный дом на одну семью 255 m², новая, Vir
Vir€ 800 000
Объявление обновлено 17.11.2025
Описание
ID: 2152
ID CODE: 2152
Stella Mar
Mob: +385 91 320 4955
E-mail: info@stellamar.hr
www.stellamar.hr
Характеристики
- Типология
- Отдельный дом на одну семью
- Договор
- Продажа
- Этаж
- 1
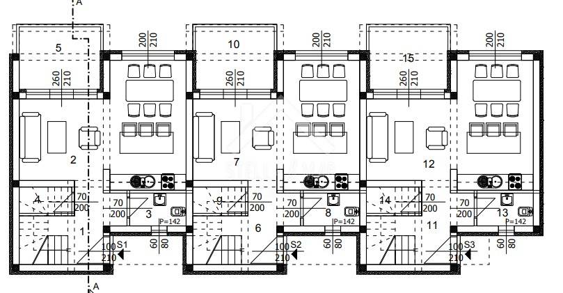
- Площадь
- 255 m² | коммерческая 947 m²
- Помещения
- 5+
- Спальни
- 9
- Ванные
- 3
- Балкон
- Нет
- Терраса
- Да
- Кондиционер
- Автономное, холод/тепло
Деталь поверхности
Жилой фонд
- Этаж
- 1
- Площадь
- 255,0 m²
- Коэффициент
- 100%
- Тип площади
- Основная
- Коммерческая площадь
- 255,0 m²
Участок
- Этаж
- Нулевой этаж
- Площадь
- 692,0 m²
- Коэффициент
- 100%
- Тип площади
- Дополнительная
- Коммерческая площадь
- 692,0 m²
Информация о ценах
- Цена
- € 800 000
- Цена за м²
- 845 €/m²
Откройте для себя каждый уголок объекта недвижимости
Доп. опции