Двухкомнатная квартира новое, нулевой этаж, Omiš

€ 294 888
2
67 m²
1
T
Да
Терраса

Пометка

Объявление обновлено 26.03.2026
Описание

This description has been translated automatically and may not be accurate

ID: ST4412

One-Bedroom Apartment in Nemira Only 150 m from the Beach

For sale is a comfortable one-bedroom apartment located on the ground floor of a modern new building in a quiet part of Nemira, just 150 meters from beautiful pebble beaches.
This apartment offers the perfect combination of comfort, luxury, and proximity to the sea ideal for living, holidays, or as an investment.

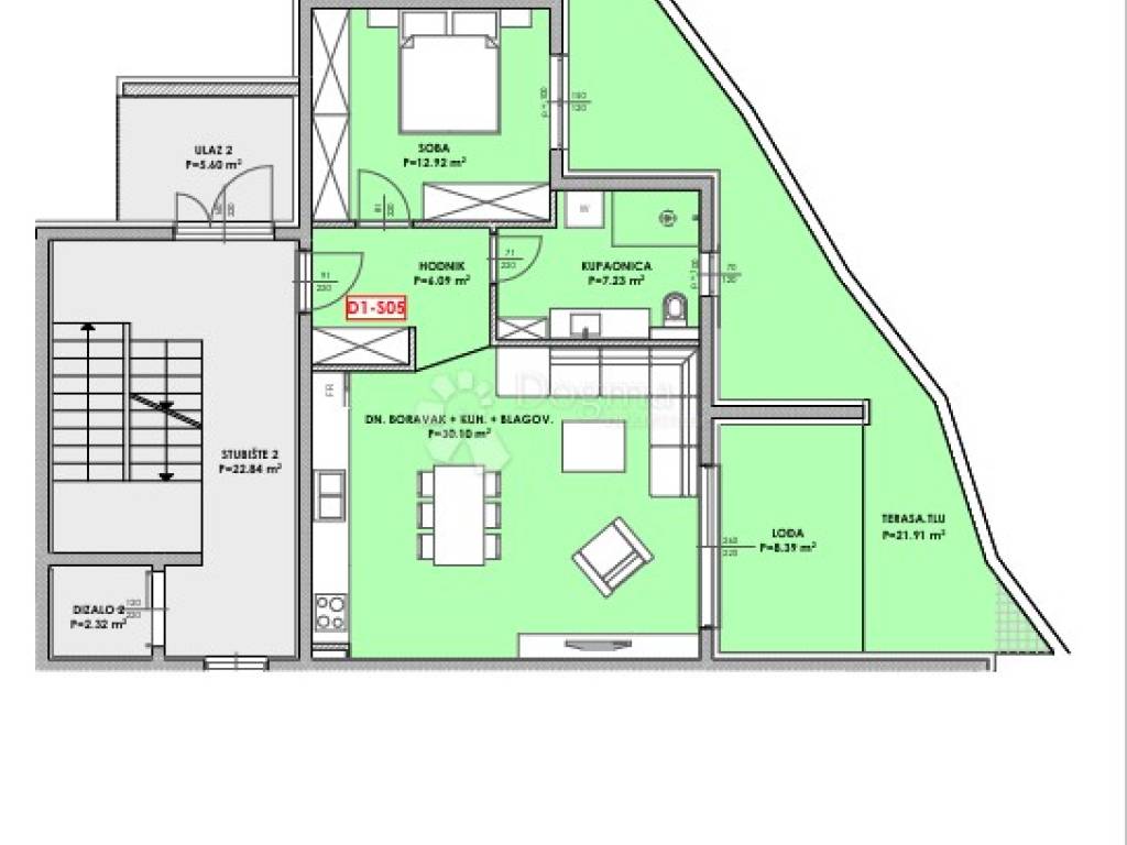
Area:

Gross: 86.64 m

Net: 67.02 m

Layout:
The apartment consists of a spacious living room connected with the kitchen and dining area, one comfortable bedroom, a modern bathroom, and a hallway.
It is equipped with high-quality materials and designed to provide an elegant and cozy atmosphere.

A special feature is the large terrace of 21.91 m, partially covered, ideal for outdoor relaxation, family gatherings, or enjoying the Dalmatian sun.
The surrounding green area adds extra privacy and tranquility, creating the perfect setting for everyday living.

Location:
Nemira is known for its crystal-clear sea, pine forests, and beautiful beaches. The nearby towns of Omiš and Split offer easy access to urban amenities, restaurants, and cultural attractions.

The surroundings provide numerous opportunities for an active lifestyle rafting and zip-line on the Cetina River, hiking, and boat trips to the islands of Brač and Hvar.

Additional options:

Garage space: 1,850/m

Outdoor parking: 1,000/m

Storage room: 1,850/m

This apartment is a perfect choice for a couple, as a luxurious holiday retreat, or as an investment with excellent rental potential.
If you are looking for a place that combines peace, nature, and closeness to the sea this apartment in Nemira is the ideal choice.

Contact:
Marija Bošnjak
Makarska
Tel: +385 95 37 27 471
Email: marija.bosnjak@dogma-nekretnine.com

ID CODE: ST4412

Marija Bošnjak
Asistent u posredovanju
Mob: 095/372-7471
Tel: +385 95 372 7471
E-mail: marija.bosnjak@dogma-nekretnine.com
www.dogma-nekretnine.com
Если вы хотите узнать больше, вы можете поговорить с Marija Bošnjak.
Характеристики
Типология
Квартира
Договор
Продажа
Этаж
Нулевой этаж
Лифт
Да
Площадь
67 m²
Помещения
2
Спальни
1
Ванные
1
Балкон
Нет
Терраса
Да
Гараж, машиноместа
1 в частный гараж/парковка
Кондиционер
Автономное, холод/тепло
Информация о ценах
Цена
€ 294 888
Цена за м²
4 401 €/m²
Энергоэффективность
  • Состояние

    Новое / На стадии строительства
  • Кондиционер

    Автономное, холод/тепло
  • Энергетическая сертификация

    Не подлежащий
Откройте для себя каждый уголок объекта недвижимости
+8
Доп. опции

Свяжитесь с рекламодателем

Или