Четырехкомнатная квартира новое, нулевой этаж, Vodice

€ 570 311
4
116 m²
2
T
Терраса

Пометка

Объявление обновлено 06.03.2026
Описание

This description has been translated automatically and may not be accurate

ID: DA100065841

FOR SALE THREE-BEDROOM APARTMENT IN VODICE, BEST LOCATION, GROUND FLOOR

At a unique location in Vodice, residential unit S3 offers a rare opportunity, combining luxury, modern design, and an exclusive position.

The apartment is located on the ground floor and consists of:

three bedrooms

two bathrooms

kitchen with dining area and living room

hallway

walk-in wardrobe

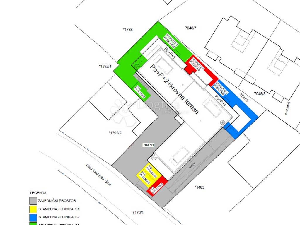
Net internal area: 77.15 m
Additional features include:

ground floor terrace: 20.16 m

parking space P13: 14.11 m

garden 3: 106.48 m

Total usable area: 217.90 m
Usable value area: 116.39 m

Apartment highlights:

Perfect orientation the living area faces west with optimal northern and southern exposure, maximizing natural daylight, extending sunlight throughout the day, and creating a pleasant atmosphere for living and relaxation.

Spacious terrace and garden 20.16 m terrace and 106.48 m garden provide an ideal space for relaxation, gatherings with family and friends, and enjoying the Mediterranean lifestyle. The large outdoor area offers privacy and freedom for outdoor activities.

Bright and airy interior designed with PVC windows and an impressive glass wall in the living room that naturally connects the interior with the terrace and garden, creating a feeling of spaciousness, comfort, and openness.

Modern construction the building is constructed to high contemporary standards, including electric shutters, concealed cisterns, modern bathrooms with walk-in showers, and underfloor heating for maximum comfort.

This property offers a perfect combination of modern design, luxury, and an exclusive location ideal for peaceful family living, vacation, or as a premium investment.

Vodice the Dalmatian gem
Vodice is one of the most famous tourist centers on the Adriatic, only 15 minutes by car from Šibenik. The town is known for:

long seafront promenades

well-maintained beaches and crystal-clear sea

rich gastronomic and cultural offer

vibrant nightlife and social life

Vodice combines the charm of a Mediterranean town with the vibrancy of modern tourism, making it a perfect place to live and spend holidays.

ID CODE: DA100065841

Tomislav Bitunjac
Asistent u posredovanju
Mob: 095/584-8157
Tel: +385 21 293 201
E-mail: tomislav.bitunjac@dogma-nekretnine.com
www.dogma-dalmacija.com
Если вы хотите узнать больше, вы можете поговорить с Tomislav Bitunjac.
Характеристики
Типология
Квартира
Договор
Продажа
Этаж
Нулевой этаж
Площадь
116 m²
Помещения
4
Спальни
3
Ванные
2
Балкон
Нет
Терраса
Да
Информация о ценах
Цена
€ 570 311
Цена за м²
4 916 €/m²
Энергоэффективность
  • Год постройки

    2026
  • Состояние

    Новое / На стадии строительства
  • Энергетическая сертификация

    Не подлежащий
Откройте для себя каждый уголок объекта недвижимости
+15
Доп. опции

Свяжитесь с рекламодателем

Или