Участок под застройку Продажа

€ 149 000
381 m²

Пометка

Объявление обновлено 19.03.2026
Описание

ID: DA100065448

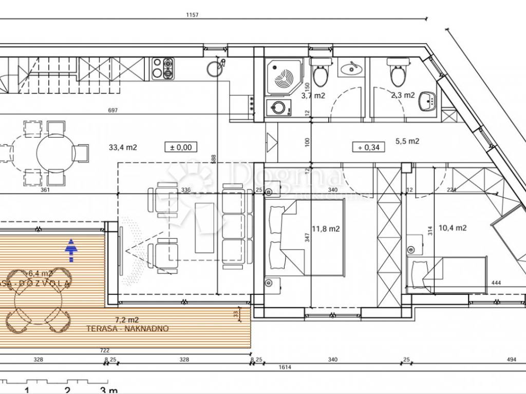
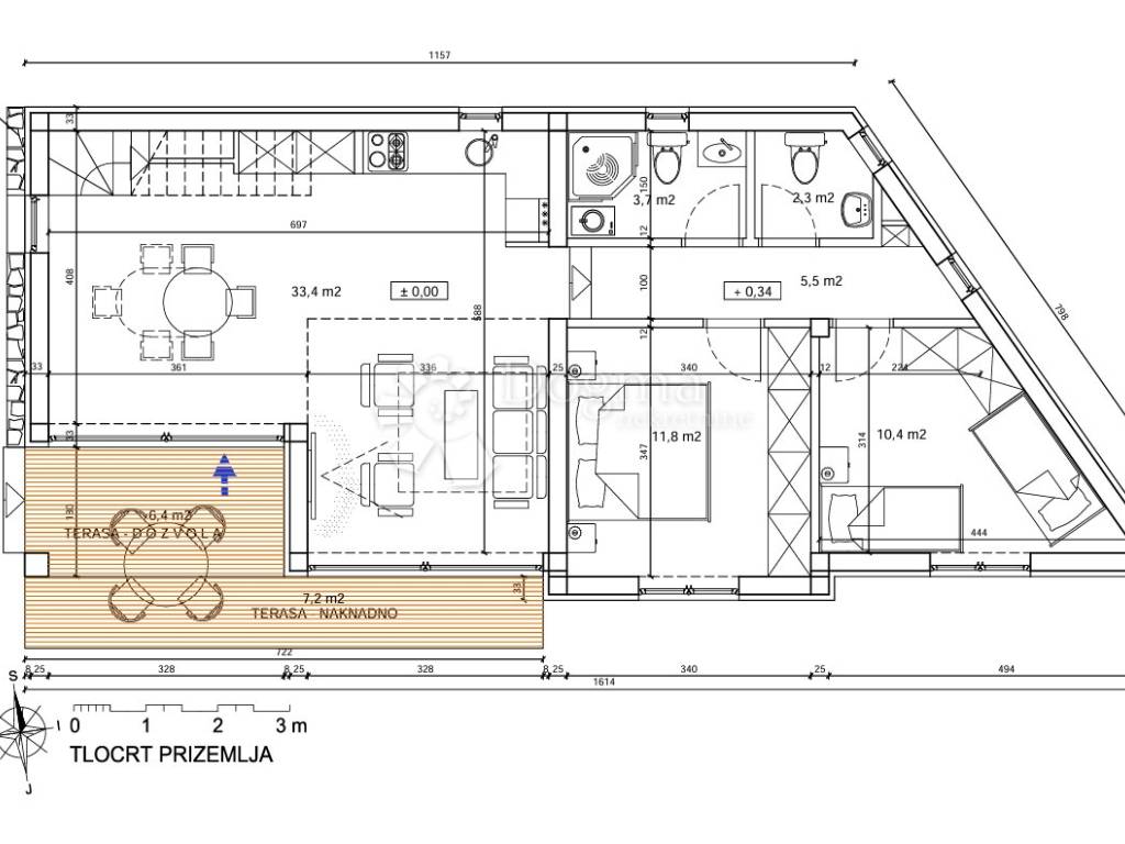
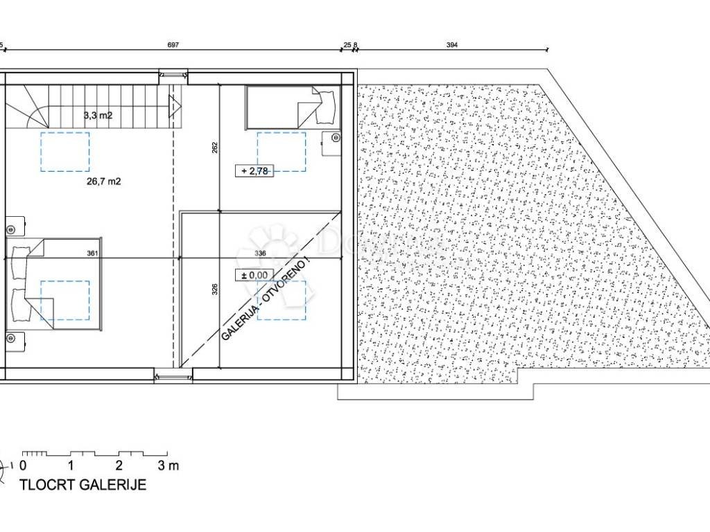
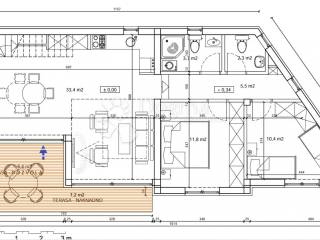
PERSPEKTIVNO GRAĐEVINSKO ZEMLJIŠTE S IDEJNIM RJEŠENJEM SAMO 120 M OD MORA

Na odličnoj lokaciji, u mirnom okruženju svega 120 metara od mora, nalazi se ovo atraktivno građevinsko zemljište koje već posjeduje izrađen idejni nacrt iskoristivosti prostora.

Zemljište pruža mogućnost realizacije moderne prizemnice ili višekatnice s inovativnim tlocrtom, ostavljajući dovoljno prostora za privatnu okućnicu i minimalno dva parkirna mjesta.

Tlocrtni prikaz dodatno ilustrira potencijal oblikovanja jedinstvene nekretnine, bilo za privatnu upotrebu ili investiciju.

Ova parcela je idealno platno za stvaranje posebne arhitektonske priče nekretnine koja će se istaknuti oblikom, funkcionalnošću i blizinom mora. Savršeno za vizionare koji traže prostor s karakterom i potencijalom.

Slobodno nam se obratite za više informacija ili dogovor za razgled.

Draženka Blazinarić

+385 91 796 2322

drazenka.blazinaric@dogma-nekretnine.com

ID KOD AGENCIJE: DA100065448

Draženka Blazinarić
Asistent u posredovanju
Mob: 091/796-2322
Tel: 022/646-360, 022/646-361
E-mail: drazenka.blazinaric@dogma-nekretnine.com
www.dogma-dalmacija.com
Если вы хотите узнать больше, вы можете поговорить с Draženka Blazinarić.
Характеристики
Договор
Продажа
Типология
Участок под застройку
Площадь
381 m²
Информация о ценах
Цена
€ 149 000
Цена за м²
391 €/m²
Откройте для себя каждый уголок объекта недвижимости
+9
Доп. опции

Свяжитесь с рекламодателем

Или