map icon

Трехкомнатная квартира новое, первый этаж, Pakoštane

Pakoštane
€ 320 608
3
91 m²
2
1
Терраса

Пометка

Объявление обновлено 18.11.2025
Описание

This description has been translated automatically and may not be accurate

ID: DA100065152

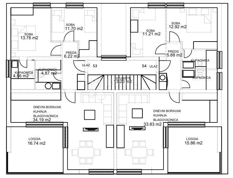
PAKOŠTANE S3 APARTMENT ON THE FIRST FLOOR WITH TERRACE AND TWO BEDROOMS

The apartment is part of a small residential building with a total of 6 units.
The building is located in a quiet area, approximately 550 meters from a pebble beach.

Apartment S3 is located on the first floor and consists of an entrance hall, kitchen, dining and living area, two bedrooms, and two bathrooms, with a total interior surface of 79,72 m. The apartment also includes a covered terrace of 12,51 m and one parking space.
The total net usable area for sale is 91,60 m.

High-quality construction.

Expected completion of construction: 07/2026.

The buyer does not pay real estate transfer tax.

Croatias number one real estate agency for 25 years.

For all additional information or to arrange a viewing, contact exclusively at: +385 91 9077 396 or vedrana.basic@dogma-nekretnine.com

Contact:
VEDRANA BAŠIĆ
Mobile: +385 91 9077 396
E-mail: vedrana.basic@dogma-nekretnine.com

ID CODE: DA100065152

Vedrana Bašić
Asistent u posredovanju
Mob: 091/907-7396
Tel: 023/551-400
E-mail: vedrana.basic@dogma-nekretnine.com
www.dogma-nekretnine.com
Если вы хотите узнать больше, вы можете поговорить с Vedrana Bašić .
Характеристики
Типология
Квартира
Договор
Продажа
Этаж
1 этаж
Площадь
91 m²
Помещения
3
Спальни
2
Ванные
2
Балкон
Нет
Терраса
Да
Информация о ценах
Цена
€ 320 608
Цена за м²
3 523 €/m²
Энергоэффективность
  • Состояние

    Новое / На стадии строительства
  • Энергетическая сертификация

    Не подлежащий
Откройте для себя каждый уголок объекта недвижимости
+13
Доп. опции

Свяжитесь с рекламодателем

Или