1/9


Отдельный дом на одну семью 224 m², новая, Vodice
Vodice€ 750 000
Объявление обновлено 18.11.2025
Описание
ID: DA100065039
ID CODE: DA100065039
Josipa Vrcić
Asistent u posredovanju
Mob: 095/901-4869
Tel: 022/646-360, 022/646-361
E-mail: josipa.vrcic@dogma-nekretnine.com
www.dogma-dalmacija.com
Характеристики
- Типология
- Отдельный дом на одну семью
- Договор
- Продажа
- Этаж
- 1
- Лифт
- Да
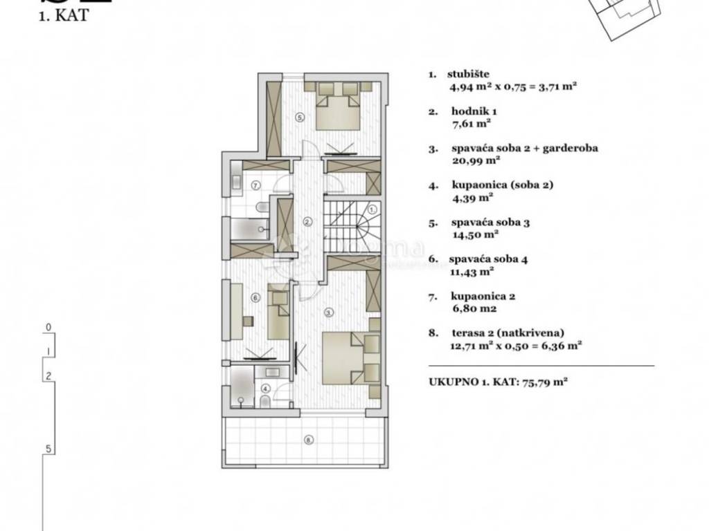
- Площадь
- 224 m² | коммерческая 349 m²
- Помещения
- 5
- Спальни
- 4
- Ванные
- 3
- Балкон
- Да
- Терраса
- Да
Другие характеристики
Деталь поверхности
Жилой фонд
- Этаж
- 1
- Площадь
- 224,0 m²
- Коэффициент
- 100%
- Тип площади
- Основная
- Коммерческая площадь
- 224,0 m²
Участок
- Этаж
- Нулевой этаж
- Площадь
- 125,0 m²
- Коэффициент
- 100%
- Тип площади
- Дополнительная
- Коммерческая площадь
- 125,0 m²
Информация о ценах
- Цена
- € 750 000
- Цена за м²
- 2 149 €/m²
Откройте для себя каждый уголок объекта недвижимости
Доп. опции