Офис - Студия Продажа

€ 259 000
5
57 m²

Пометка

Объявление обновлено 10.03.2026
Описание

ID: PP1807

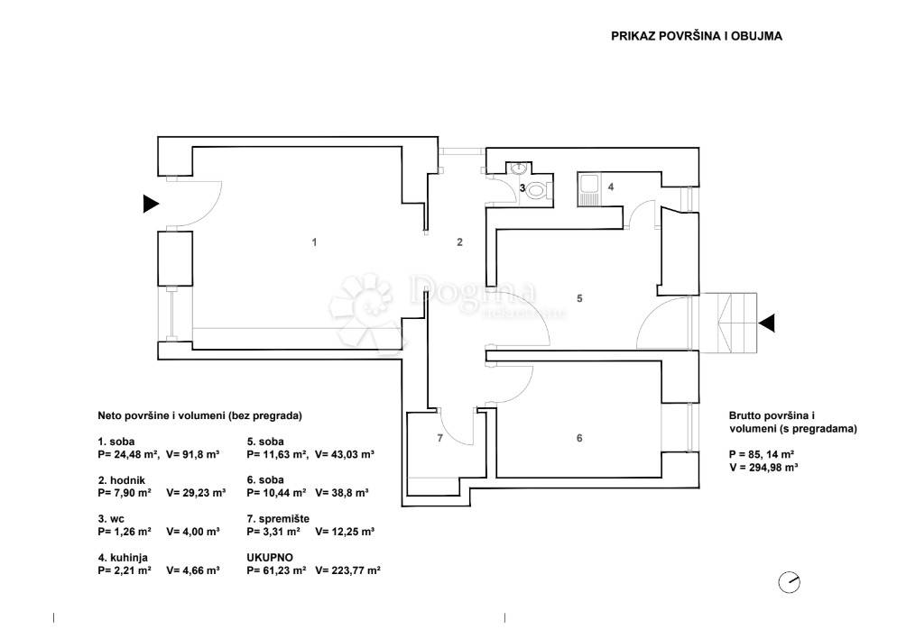
Na izvrsnoj lokaciji, svega nekoliko minuta hoda od strogog centra Rijeke, na Brajdi, u ponudi je poslovni prostor površine 57 m, idealan za uredske djelatnosti, tihi obrt ili slične namjene.

Prostor se nalazi u zgradi s održavanim zajedničkim prostorima i ima dva zasebna ulaza jedan direktno s ceste, a drugi iz unutarnjeg portuna zgrade, što pruža dodatnu fleksibilnost u organizaciji poslovanja.

Raspored prostora obuhvaća: tri uredske prostorije povezane hodnikom, sanitarni čvor, ostavu.

Prostor je u stanju koje zahtijeva blažu adaptaciju, što omogućuje novom vlasniku da ga prilagodi vlastitim potrebama.

Atraktivna i lako dostupna lokacija
Blizina centra grada i svih sadržaja
Dva ulaza s ceste i iz zgrade
Uredna dokumentacija
Idealno za tihi obrt, administraciju ili studio

Napomena: Prostor je u vlasničkom listu evidentiran kao stan, ali se koristi kao poslovni prostor te posjeduje urednu dokumentaciju.

ID KOD AGENCIJE: PP1807

Dogma nekretnine
Mob: 051/341-080, 051/333-407
Tel: 051 341 080, 051 341 081, 051 333 407
E-mail: info@dogma-nekretnine.com
www.dogma-nekretnine.com
Характеристики
Договор
Продажа
Типология
Офис - Студия
Площадь
57 m²
Помещения
5 помещения
Информация о ценах
Цена
€ 259 000
Цена за м²
4 544 €/m²
Откройте для себя каждый уголок объекта недвижимости
+7
Доп. опции

Свяжитесь с рекламодателем

Или