1/13


Трехкомнатная квартира новое, нулевой этаж, Pakoštane
Pakoštane€ 291 681
Объявление обновлено 18.11.2025
Описание
ID: DA100064657
ID CODE: DA100064657
Mauro Bobić
Agent s licencom
Mob: 099/627-2163
Tel: 023/551-400
E-mail: mauro.bobic@dogma-nekretnine.com
www.dogma-nekretnine.com
Характеристики
- Типология
- Квартира
- Договор
- Продажа
- Этаж
- Нулевой этаж
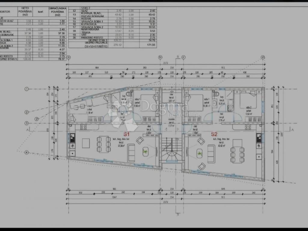
- Площадь
- 74 m²
- Помещения
- 3
- Спальни
- 2
- Ванные
- 1
- Балкон
- Нет
- Терраса
- Да
Информация о ценах
- Цена
- € 291 681
- Цена за м²
- 3 942 €/m²
Откройте для себя каждый уголок объекта недвижимости
Доп. опции