1/14


Трехкомнатная квартира второй этаж, Vodnjan
Vodnjan€ 371 754
Объявление обновлено 18.11.2025
Описание
ID: IS1515627
ID CODE: IS1515627
Filip Crnjac
Agent s licencom
Mob: 091/600-1216
Tel: 052 645 444
E-mail: filip.crnjac@dogma-nekretnine.com
www.dogma-istra.com
Gabrijela Lovrinović
Agent s licencom
Mob: 097/761-7229
Tel: 052 770 811
E-mail: gabrijela.lovrinovic@dogma-nekretnine.com
www.dogma-istra.com
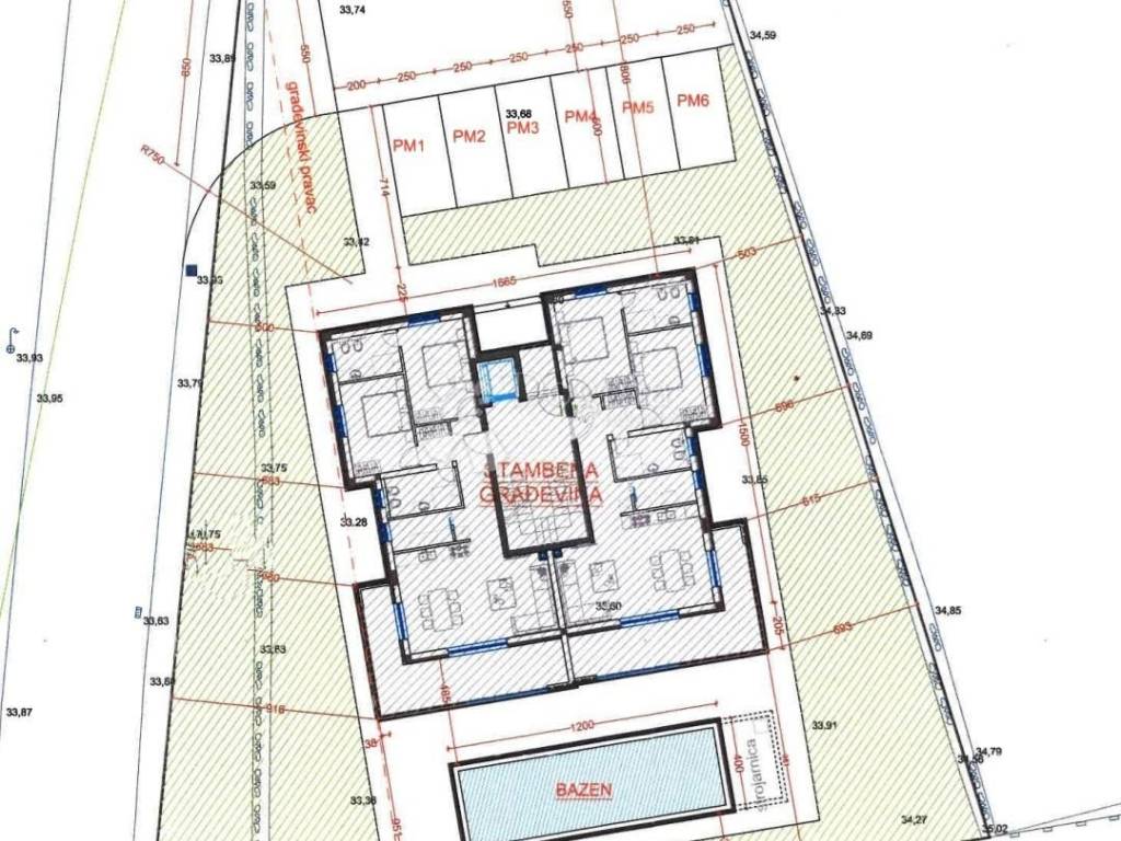
Характеристики
- Типология
- Квартира
- Договор
- Продажа
- Этаж
- 2
- Лифт
- Да
- Площадь
- 102 m² | коммерческая 702 m²
- Помещения
- 3
- Спальни
- 2
- Ванные
- 2
- Балкон
- Нет
- Терраса
- Нет
- Кондиционер
- Автономное, холод/тепло
Деталь поверхности
Жилой фонд
- Этаж
- 2
- Площадь
- 102,0 m²
- Коэффициент
- 100%
- Тип площади
- Основная
- Коммерческая площадь
- 102,0 m²
Участок
- Этаж
- Нулевой этаж
- Площадь
- 600,0 m²
- Коэффициент
- 100%
- Тип площади
- Дополнительная
- Коммерческая площадь
- 600,0 m²
Информация о ценах
- Цена
- € 371 754
- Цена за м²
- 530 €/m²
Энергоэффективность
Откройте для себя каждый уголок объекта недвижимости
Доп. опции