Четырехкомнатная квартира новое, Vodice

€ 254 000
4
84 m²
1
Да
Балкон
Терраса

Пометка

Объявление обновлено 19.11.2025
Описание

This description has been translated automatically and may not be accurate

ID: DA100062958


VODICE - Perfect apartment (new construction) in a quiet part of Vodice

S3 FLOOR

A beautiful apartment for sale in a new building, located in a quiet part of the town of Vodice, only 1300 meters from the beach and the city center. Vodice is known for its rich history, beautiful beaches and lively tourist spirit, which makes it an ideal place for living and vacationing.

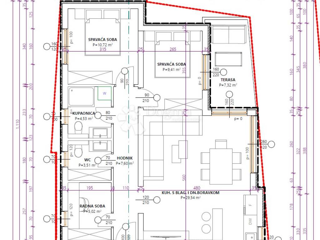
APARTMENT 3 - 1ST FLOOR

Kitchen, dining room
Living room 32.87 32.87
Corridor 8.08 8.08
Bedroom 1 11.04 11.04
Bedroom 2 9.72 9.72
Bedroom 3 5.05 5.05
Bathroom 4.73 4.73
WC 2.58 2.58
Pantry 2.80 2.80
Balcony 16.03 8.02

Total Gross 96.96 net 84.89

The common part of the staircase is 12.50 m2

The apartment is located in a quiet environment that provides the necessary privacy and tranquility, and at the same time is close enough to all important amenities. This spacious apartment features a modern design and functional layout, perfect for family life.

Inside the apartment, the large kitchen with dining room is equipped with modern appliances and offers plenty of space for cooking and spending time with family and friends. The bright and spacious living room is ideal for relaxing after a busy day, providing the comfort and warmth of home.

The apartment has three comfortable bedrooms, each with enough space for a wardrobe and personal belongings, providing privacy for each member of the family. In addition to the main bathroom, the apartment also has a separate toilet for guests, which contributes to functionality and practicality.

Don't miss this great opportunity.

Contact us with confidence

ID CODE: DA100062958

Josipa Vrcić
Asistent u posredovanju
Mob: 095/901-4869
Tel: 022/646-360, 022/646-361
E-mail: josipa.vrcic@dogma-nekretnine.com
www.dogma-dalmacija.com
Если вы хотите узнать больше, вы можете поговорить с Josipa Vrcić.
Характеристики
Типология
Квартира
Договор
Продажа
Лифт
Да
Площадь
84 m²
Помещения
4
Спальни
3
Ванные
1
Балкон
Да
Терраса
Да
Информация о ценах
Цена
€ 254 000
Цена за м²
3 024 €/m²
Энергоэффективность
  • Состояние

    Новое / На стадии строительства
  • Энергетическая сертификация

    Не подлежащий
Откройте для себя каждый уголок объекта недвижимости
+8
Доп. опции

Свяжитесь с рекламодателем

Или