Участок под застройку Продажа

€ 310 000
1 000 m²

Пометка

Объявление обновлено 04.05.2026
Описание

ID: IS1511789

Atraktivno građevinsko zemljište s idejnim projektom i pogledom na more nudi potencijal za razvoj turističkog smještaja. Nalazi se svega minutu vožnje automobilom da prve plažew!

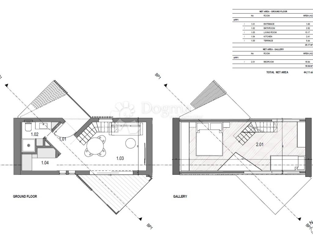
Zemljište A, površine 505 m2, namijenjen je za izgradnju objekta s 3 apartmana prema idejnom projektu.

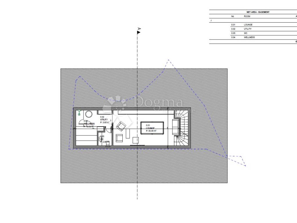
Zemljište B površine oko 435 m2 sadrži staru kuću za rekonstrukciju i proširenje. Idejni projekt predviđa izgradnju vile s bazenom na ovoj lokaciji. Ova parcela također uključuje mogućnost otkupa dodatnih 107 m2 od Općine kako bi se omogućila izvedba projekta. Ukupna površina bi bila dovoljna za izvedbu idejnog projekta.

Cijena za zemljište A iznosi 145.000, dok je cijena za drugi dio (s rekonstrukcijom i proširenjem) 195.000. Za oba dijela zajedno, cijena je 310.000.

Zemljište je blago nagnuto ili potpuno ravno, te se nalazi na tihoj i mirnoj lokaciji uz asfaltirani put. Svi komunalni priključci su dostupni do samog terena. Vlasništvo je uredno i čisto.

Parcela nudi pogled na more iz prizemlja, dok bi s prvog kata nudio otvoreni pogled na more. Udaljenost od moraje svega nekoliko minuta hoda.

Ovo zemljište predstavlja dobru priliku za investitore koji se bave izgradnjom apartmana ili kuća za iznajmljivanje, pogotovo s obzirom na blizinu mora!

Za sve dodatne informacije i razgled nekretnine, slobodno nas kontaktirajte kako bi Vam ponudila personalizirani pristup i diskretnu uslugu pronalaska nekretnina po Vašim željama i preferencijama.

LORENA KOGEJ
Agent s licencom
Mob 091/738-7200
Telefon 052/639-276
lorena.kogej@dogma-nekretnine.com

SANDRA MILETIĆ
Agent s licencom
Mob 091/988-5843
Telefon 052/639-276
sandra.miletic@dogma-nekretnine.com

ID KOD AGENCIJE: IS1511789

Lorena Kogej
Agent s licencom
Mob: 091/738-7200
Tel: 052/639-276
E-mail: lorena.kogej@dogma-nekretnine.com
www.dogma-nekretnine.com

Sandra Miletić
Agent s licencom
Mob: 091/988-5843
Tel: 052/639-276
E-mail: sandra.miletic@dogma-nekretnine.com
www.dogma-nekretnine.com
Если вы хотите узнать больше, вы можете поговорить с Lorena Kogej.
Характеристики
Договор
Продажа
Типология
Участок под застройку
Площадь
1 000 m²
Информация о ценах
Цена
€ 310 000
Цена за м²
310 €/m²
Откройте для себя каждый уголок объекта недвижимости
+22
Доп. опции

Свяжитесь с рекламодателем

Или