Участок под застройку Продажа

€ 125 000
1 193 m²

Пометка

Объявление обновлено 19.11.2025
Описание

ID: ZG70806

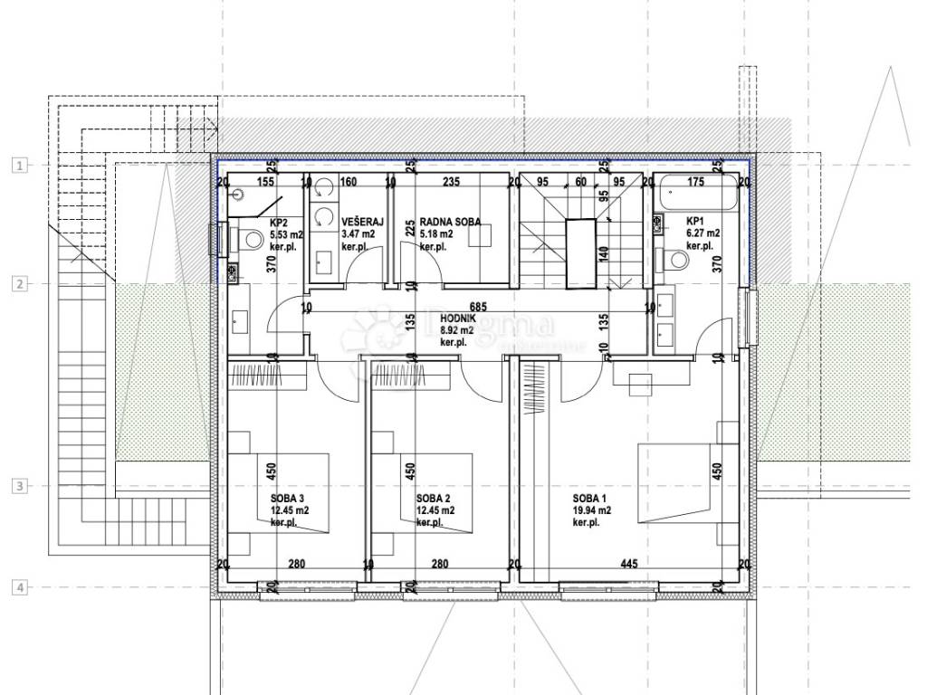
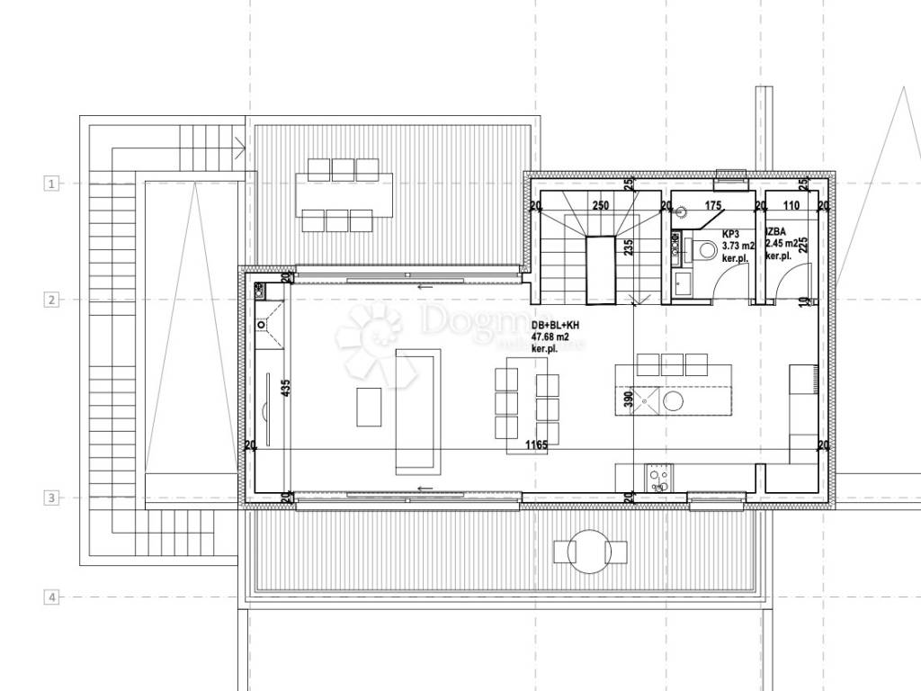
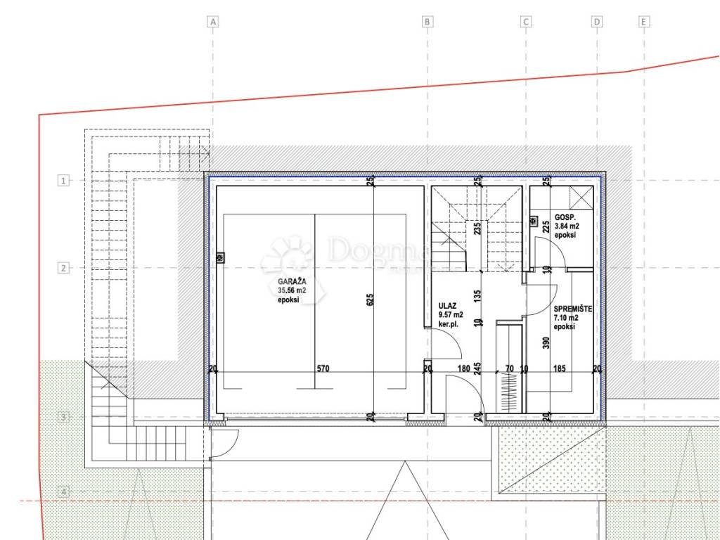
Smješteno u podsljemenskoj zoni Zagreba, nedaleko od žičare, ovo prostrano građevinsko zemljište pravilnog oblika nudi nevjerojatan pogled na grad Zagreb. S pravovaljanom građevinskom dozvolom već u rukama, ovo zemljište je idealno za gradnju kuće iz snova s tri etaže.

Prema dozvoli, kuća će se sastojati od garaže i ostava u podrumu, spavaćih soba na visokom prizemlju te dnevnog boravka, blagovaonice i kuhinje na uvučenom katu s izlazom na prostrano dvorište i prekrasan panoramski pogled.

Uz osigurane uvjete za gradnju, ispitivanje trusnog područja za sigurnu gradnju, te sve potrebne infrastrukture (kanalizacija, plin) na samo 2 metra udaljenosti, ovo zemljište nudi savršenu podlogu za vašu idiličnu nekretninu.

Pristup parceli je jednostavan: direktno sa uređene asfaltirane ceste s malo prometa.
Također, moguće je kupiti zemljište na parceli do koje ima 1012m2.

Za sve dodatne informacije kao i za dogovor termina za razgledanje, kontaktirajte broj +385 95 88 09 208 - Katarina Vlašić.
Mail: katarina.vlasic@dogma-nekretnine.com

ID Kod agencije: ZG70806

ID KOD AGENCIJE: ZG70806

Katarina Vlašić
Agent s licencom
Mob: 095/880-9208
Tel: 052 645 444
E-mail: katarina.vlasic@dogma-nekretnine.com
www.dogma-istra.com
Если вы хотите узнать больше, вы можете поговорить с Katarina Vlašić.
Характеристики
Договор
Продажа
Типология
Участок под застройку
Площадь
1 193 m²
Информация о ценах
Цена
€ 125 000
Цена за м²
105 €/m²
Откройте для себя каждый уголок объекта недвижимости
+5
Доп. опции

Свяжитесь с рекламодателем

Или