Отдельный дом на одну семью 283 m², новая, Podstrana

€ 1 400 000
5
283 m²
3
Да
Балкон
Терраса

Пометка

Объявление обновлено 31.12.2025
Описание

This description has been translated automatically and may not be accurate

ID: ST1601

ELITE VILLA IN AN INTIMATE LOCATION! SUB PAGE

We are proud to present this luxury villa in a new building with a breathtaking view.
The villa is located in Podstrana, not far from the city of Split, in an extremely quiet and elite neighborhood. The villa is the fifth in a row of five almost identical villas, and the owners of some of them are world-famous athletes, entrepreneurs and artists. All other 4 villas have been sold.

The villa is located on a plot of land of 613m2, which provides enough privacy and space for various activities and events.
The total area of the villa is 283m2, while the total net usable area is 203m2. The entire building is made of high-quality reinforced concrete and contains 10 cm of thermal insulation. Right now, the real estate is in the process of facades.

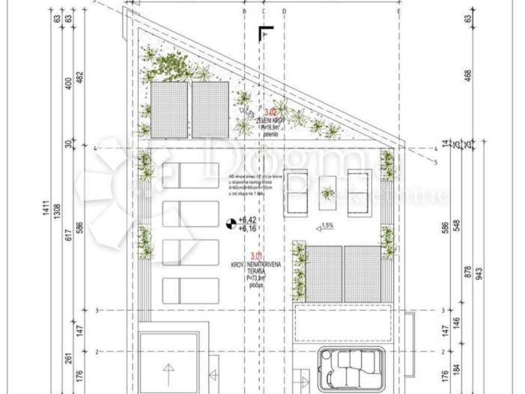
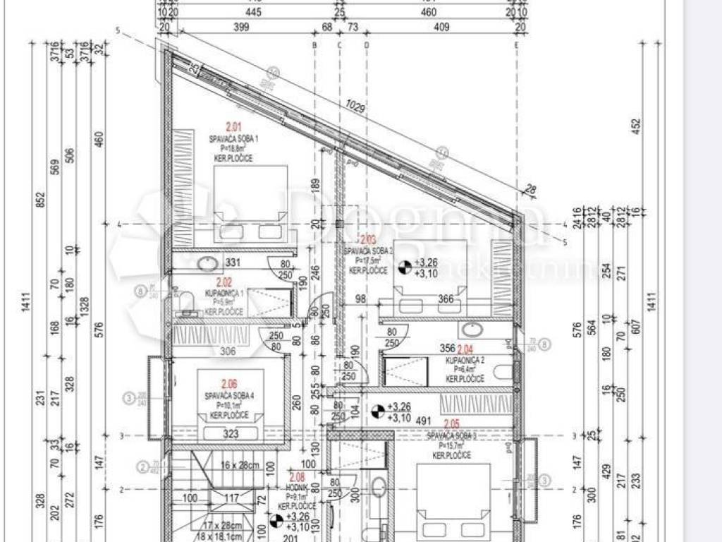
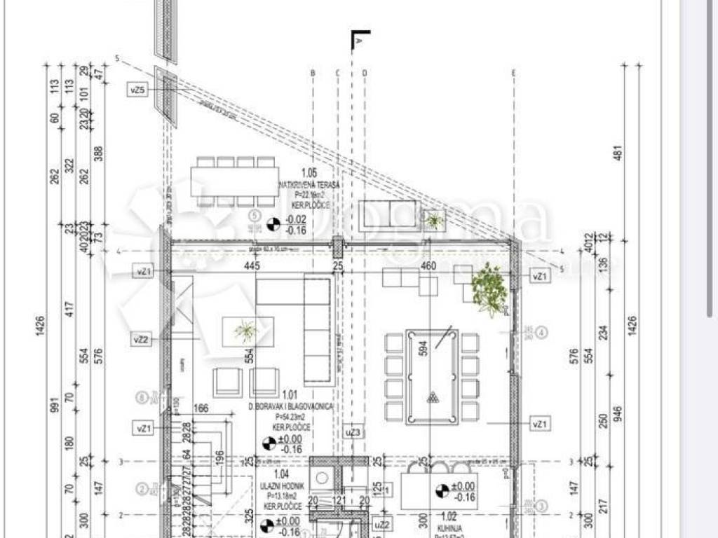
The villa consists of a ground floor, a first floor and a roof terrace.

The ground floor includes a large and comfortable 'open space' living room and dining room (54.23m2), a modern kitchen (13.58m2), a designer toilet (2m2), an entrance area (13.18m2) and a spacious covered terrace (22.19m2) ) as if created for summer evenings and watching the fairy-tale scene of the sea, islands, sunrise and sunset, which are, believe me, unreal in this place!

On the first floor there are as many as 4 bedrooms (15.7m2, 10.1m2, 17.5m2 and 18.8m2) and three luxuriously equipped bathrooms (6.4m2, 5.9m2 and 4.6m2)

The roof terrace is the special icing on top of this luxury villa. The area is 73.3m2 and we have a jacuzzi, a lounge area and a green roof (16.9m2) on it. This roof terrace, given the view it offers, can be your inexhaustible source of inspiration, pleasure and that true hedonism of life.

Furthermore, the villa will be equipped with video surveillance, an alarm and fire protection system, a central vacuum system, underfloor heating, air conditioners, an electric car charger and much more.

Also, two parking spaces are reserved for your tin pets with the possibility of building additional spaces.

And finally, in front of the villa you have your own swimming pool with an arranged stone sunbathing area. Because what would a luxury villa be without a real swimming pool.

The price of the property includes the complete furnishing and furnishing of the villa. At this stage, the buyer can choose materials for decorating and furnishing the interior and can also buy the villa without furniture, which would lower the selling price.

Don't miss out on becoming the proud owner of this imposing villa, the likes of which there aren't many on the market, and contact us with confidence so we can give you more information and arrange a viewing.

Filip Luštica +385 95 544 2160

ID CODE: ST1601

Ivana Fabiana Buljubašić
Agent s licencom
Mob: 091/532-7295
Tel: +385 21 293 201
E-mail: ivana.buljubasic@dogma-nekretnine.com
www.dogma-dalmacija.com
Если вы хотите узнать больше, вы можете поговорить с Ivana Fabiana Buljubašić.
Характеристики
Типология
Отдельный дом на одну семью
Договор
Продажа
Лифт
Да
Площадь
283 m²
Помещения
5
Спальни
4
Ванные
3
Балкон
Да
Терраса
Да
Другие характеристики
  • Бассейн
Информация о ценах
Цена
€ 1 400 000
Цена за м²
4 947 €/m²
Энергоэффективность
  • Состояние

    Новое / На стадии строительства
  • Энергетическая сертификация

    Не подлежащий
Откройте для себя каждый уголок объекта недвижимости
+8
Доп. опции

Свяжитесь с рекламодателем

Или