Отдельный дом на одну семью 186 m², новая, Labin

€ 970 000
4
186 m²
3
Терраса

Пометка

Объявление обновлено 19.11.2025
Описание

This description has been translated automatically and may not be accurate

ID: IS1510393

A luxurious oasis of peace surrounded by low Mediterranean vegetation and a beautiful view of the sea.
The house itself consists of 186m2 and contains a ground floor and a first floor. It welcomes you with a covered entrance that creates an impression of harmony and elegance from the very beginning. Inside the house, carefully selected details of wood, stone and glass create a sophisticated interior.
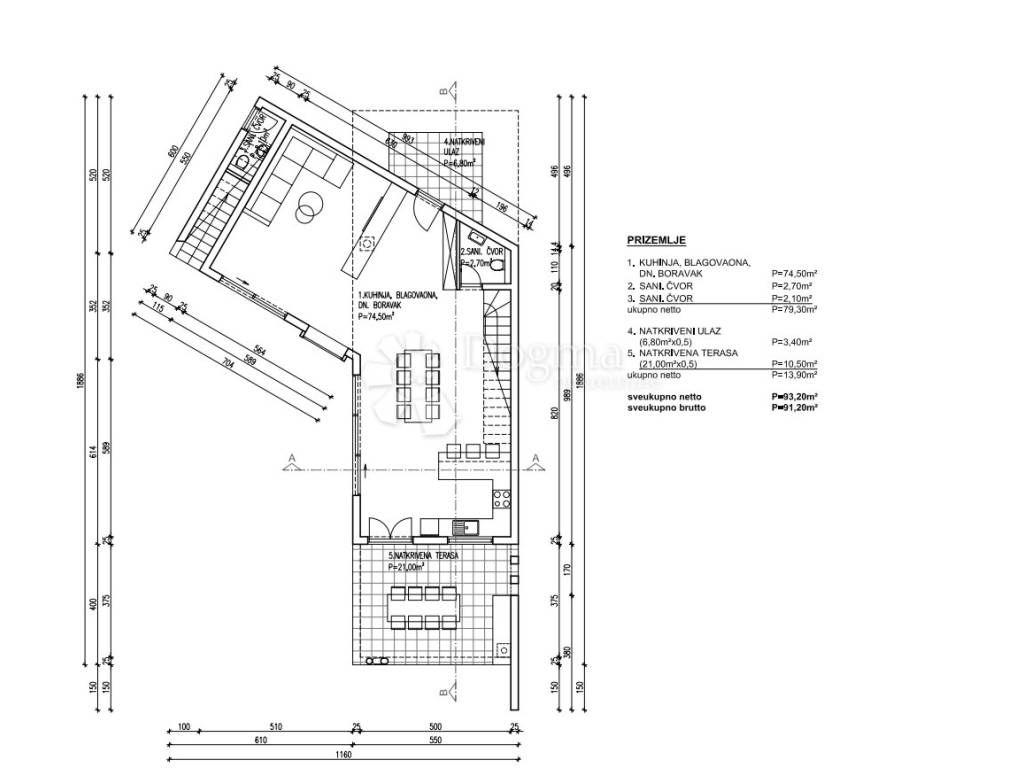
On the ground floor there is a spacious kitchen, dining room and living room, which creates an open space with an easy transition to the covered terrace. In front of it is a 34 m2 swimming pool, creating an ideal place for relaxation and enjoyment.
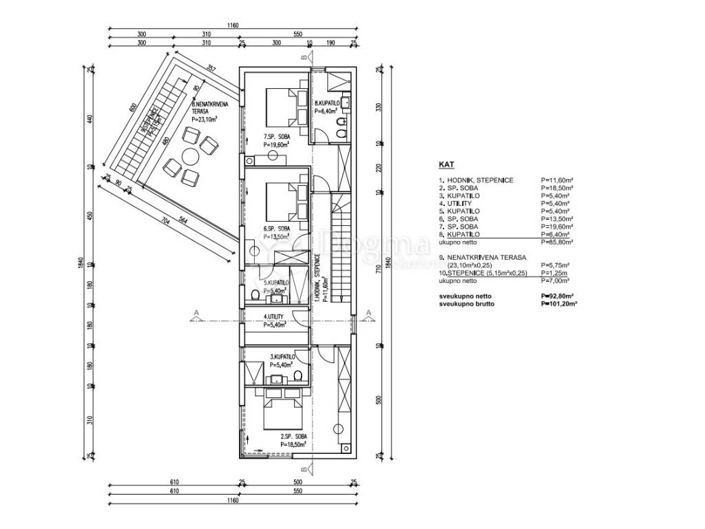
An elegant staircase leads you to the first floor where there are three bedrooms, each equipped with its own bathroom. Two of them have access to a terrace that offers a panoramic view of the sea, greenery and hills. Here, every morning will give you an unforgettable experience waking up with a view of the idyllic landscape.
In addition to comfort and luxury, the house will be equipped with underfloor heating and an air conditioning inverter, providing an ideal temperature throughout the year. While the glass walls bring you plenty of sunlight and natural light that leave an impression of spaciousness and harmony.
The stated price includes furnishing the house, but in the early stages of construction, it is possible to agree on the choice of individual materials and furniture according to your wishes and visions.
This house is not only a home, but also a space where every detail is carefully planned to provide the ultimate living experience while preserving privacy and connection with beautiful nature.
The last one in the construction zone provides complete privacy, with guaranteed peace.
Only 10 km from the center of Labin.
Call for all additional information and viewing of the property in order to offer you a personalized approach and discreet service of finding properties according to your wishes and preferences.

LORENA KOGEJ
Licensed agent
Mobile 091/738-7200
Telephone 052/639-276
lorena.kogej@dogma-nekretnine.com

SANDRA MILETIĆ
Licensed agent
Mobile 091/988-5843
Telephone 052/639-276
sandra.miletic@dogma-nekretnine.com

Labin is a town located on the eastern coast of the Istrian peninsula, only a 10-minute drive from the property. It has a rich history that goes back thousands of years, and its old town center preserves numerous historical sights. The town is located on a hilly area, which offers visitors a wonderful view of the surrounding nature and the sea.
Rabac also offers numerous restaurants, cafes and shops, where visitors can enjoy Istrian cuisine and buy souvenirs. In the evenings, it comes alive with various events, concerts and manifestations.
The beaches in Rabac, which are located 4 km from Labin, such as Girandello and Maslinica, attract visitors with their beauty and clean sea.

ID CODE: IS1510393

Lorena Kogej
Agent s licencom
Mob: 091/738-7200
Tel: 052/639-276
E-mail: lorena.kogej@dogma-nekretnine.com
www.dogma-nekretnine.com

Sandra Miletić
Agent s licencom
Mob: 091/988-5843
Tel: 052/639-276
E-mail: sandra.miletic@dogma-nekretnine.com
www.dogma-nekretnine.com
Если вы хотите узнать больше, вы можете поговорить с Lorena Kogej.
Характеристики
Типология
Отдельный дом на одну семью
Договор
Продажа
Этаж
1
Площадь
186 m² | коммерческая 1 094 m²
Помещения
4
Спальни
3
Ванные
3
Балкон
Нет
Терраса
Да
Другие характеристики
  • Бассейн
Деталь поверхности

Жилой фонд

Этаж
1
Площадь
186,0 m²
Коэффициент
100%
Тип площади
Основная
Коммерческая площадь
186,0 m²

Участок

Этаж
Нулевой этаж
Площадь
908,0 m²
Коэффициент
100%
Тип площади
Дополнительная
Коммерческая площадь
908,0 m²
Информация о ценах
Цена
€ 970 000
Цена за м²
887 €/m²
Энергоэффективность
  • Год постройки

    2024
  • Состояние

    Новое / На стадии строительства
  • Энергетическая сертификация

    Не подлежащий
Откройте для себя каждый уголок объекта недвижимости
+8
Доп. опции

Свяжитесь с рекламодателем

Или