1/4


Трехкомнатная квартира новое, четвертый этаж, Sušak, Ријека
€ 310 000
Объявление обновлено 19.11.2025
Описание
ID: ID10980
ID CODE: ID10980
Lida Orlić
Agent s licencom
Mob: 098/980-2954
Tel: +385 51 341 080
E-mail: lida.orlic@dogma-nekretnine.com
www.dogma-nekretnine.com
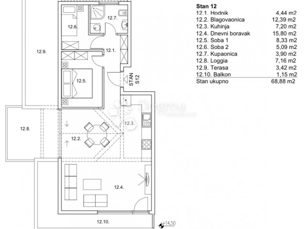
Характеристики
- Типология
- Квартира
- Договор
- Продажа
- Этаж
- 4 этаж
- Лифт
- Да
- Площадь
- 77 m²
- Помещения
- 3
- Спальни
- 2
- Ванные
- 1
- Балкон
- Да
- Терраса
- Да
- Кондиционер
- Автономное, холод/тепло
Информация о ценах
- Цена
- € 310 000
- Цена за м²
- 4 026 €/m²
Энергоэффективность
Откройте для себя каждый уголок объекта недвижимости
Доп. опции