1/12


Трехкомнатная квартира новое, второй этаж, Vir
€ 330 000
Объявление обновлено 19.11.2025
Описание
ID: DA778
ID CODE: DA778
Andrea Milak
Agent s licencom
Mob: 098/809-094
Tel: 023/551-400
E-mail: andrea.culi@dogma-nekretnine.com
www.dogma-nekretnine.com
Характеристики
- Типология
- Квартира
- Договор
- Продажа
- Этаж
- 2
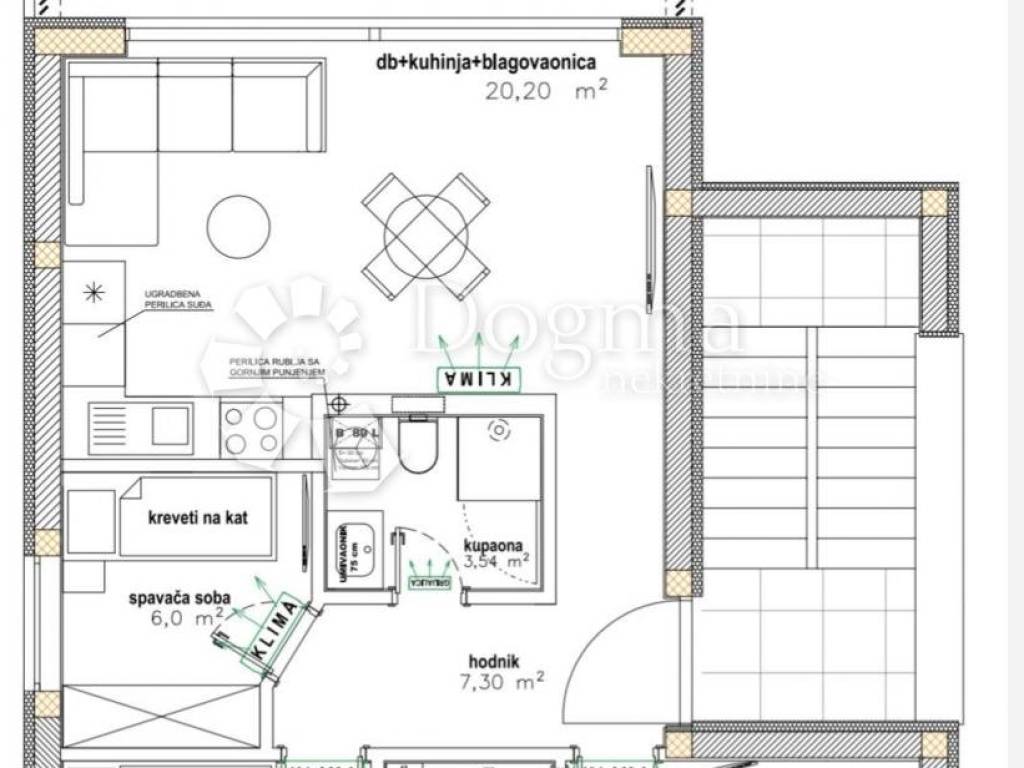
- Площадь
- 116 m² | коммерческая 123 m²
- Помещения
- 3
- Спальни
- 2
- Ванные
- 2
- Балкон
- Нет
- Терраса
- Да
Деталь поверхности
Жилой фонд
- Этаж
- 2
- Площадь
- 116,0 m²
- Коэффициент
- 100%
- Тип площади
- Основная
- Коммерческая площадь
- 116,0 m²
Участок
- Этаж
- Нулевой этаж
- Площадь
- 7,0 m²
- Коэффициент
- 100%
- Тип площади
- Дополнительная
- Коммерческая площадь
- 7,0 m²
Информация о ценах
- Цена
- € 330 000
- Цена за м²
- 2 683 €/m²
Откройте для себя каждый уголок объекта недвижимости
Доп. опции