map icon

Односемейная вилла 316 m², новая, Primošten

Primošten
€ 1 100 000
5
316 m²
3+
Терраса

Пометка

Объявление обновлено 14.04.2026
Описание

This description has been translated automatically and may not be accurate

ID: 1164

A new family house - a villa in Primošten is for sale, currently in the rough construction phase. It is located in a quiet part of Primošten, on a plot of approximately 550 m², only 300 m from the sea and about 750 m from the town center.
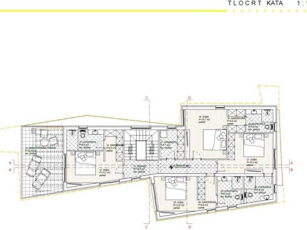
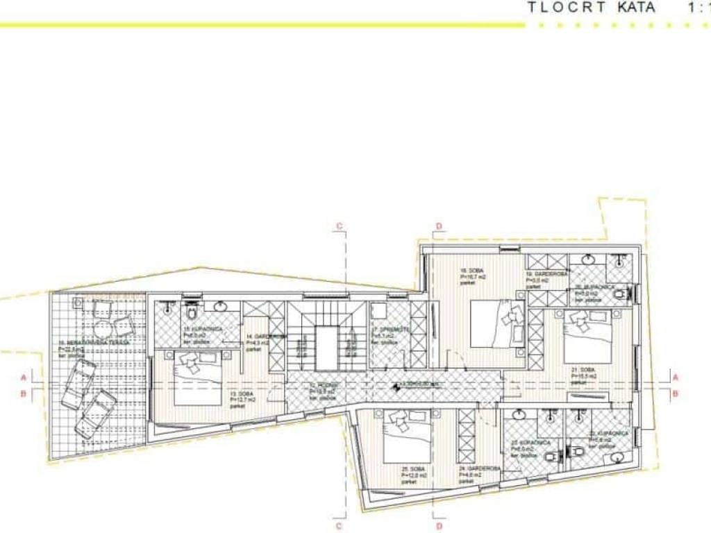
The total net area of the villa is 316.8 m². The villa will extend over two floors (ground floor and first floor) and will also have access to a rooftop terrace.
The ground floor will include a garage, utility/technical room, wellness area, kitchen with dining area, living room, and a guest toilet. The yard will feature a covered summer kitchen with dining area of 27.5 m², a swimming pool of 26 m2, and parking space for four cars.
An internal staircase leads to the first floor, which contains of four bedrooms, each with its own bathroom and walk-in wardrobe, as well as a storage room and hallway. The master bedroom has access to a spacious pergola-covered terrace of 22.8 m².
The villa will also have access to a 26.8 m² rooftop terrace featuring a lounge area with a summer kitchen. The rooftop terrace offers a beautiful panoramic sea view.
The following materials and equipment will be used in the construction and furnishing of the villa:
• Porotherm brick
• 10 cm styrofoam facade insulation
• PVC joinery, lift-and-slide glass walls
• Parquet/ceramic flooring of the buyer’s choice within the price range specified in the cost estimate
• 5.2 mm shutters with electric lifting system
• Air conditioning for heating and cooling
• Underfloor heating in part of the property (living room and bathrooms) via heat pump, with a separate cooling system
• Concrete heated swimming pool – heat pump system
• Electric vehicle charging station in the garage
There is a possibility of changing materials and equipment at the customer's choice and with additional payment, depending on the possibility of adaptation and the stage of the works performed on the building.
Note: The 3D renderings are for advertising purposes only.
Характеристики
Типология
Односемейная вилла | Вся недвижимость | Элитная недвижимость
Договор
Продажа | Доходная недвижимость
Этаж
1
Этажность здания
2
Площадь
316 m²
Помещения
5
Спальни
0
Ванные
3+
Меблировано
Нет
Терраса
Да
Гараж, машиноместа
1 в частный гараж/парковка, 4 в общая парковка/гараж
Отопление
Автономное, напольное, с помощью теплового насоса
Кондиционер
Автономное, холод/тепло
Вид
Море
Расстояние до моря
300 m
Другие характеристики
  • Туалет
  • Шкаф
  • Бассейн
Деталь поверхности

Жилой фонд

Этаж
1
Площадь
316,0 m²
Коэффициент
100%
Тип площади
Основная
Коммерческая площадь
316,0 m²
Информация о ценах
Цена
€ 1 100 000
Цена за м²
3 481 €/m²
Энергоэффективность
  • Год постройки

    2026
  • Состояние

    Новое / На стадии строительства
  • Отопление

    Автономное, напольное, с помощью теплового насоса
  • Кондиционер

    Автономное, холод/тепло
Откройте для себя каждый уголок объекта недвижимости
+28
Доп. опции

Свяжитесь с рекламодателем

Или