Трехкомнатная квартира новое, нулевой этаж, Sutivan

€ 335 000
3
2
T
Нет

Пометка

Объявление обновлено 26.11.2025
Описание

This description has been translated automatically and may not be accurate

ID: RE39692

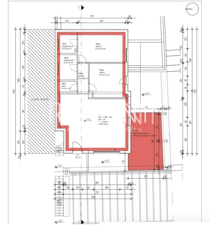
Брач, Сутиван - Двухкомнатная квартира в жилом комплексе 97,84 м2

 Испытайте вершину роскошной жизни в жилом комплексе, расположенном в недавно построенном поселке в очаровательном городке Сутиван на острове Брач. Красивые роскошные апартаменты с панорамным видом, который оставит вас без слов и позволит погрузиться в красоту окружающей природы и принять средиземноморский образ жизни. Апартаменты в комплексе продаются с полностью оборудованными ванными комнатами, установленными полами и кондиционерами. Эта трехкомнатная квартира на первом этаже площадью 97,84 м2 состоит из двух спален, двух ванных комнат, гостиной с кухней и столовой. Открытая планировка создает просторную и привлекательную атмосферу, идеально подходящую для отдыха и развлечений. Примите красоту внутренней и внешней жизни с прямым доступом к очаровательному частному саду, где вы можете погрузиться в спокойствие природы и создать собственный оазис мира. С крытой террасы наслаждайтесь прекрасным видом на море. Возможно сотрудничество по оборудованию квартиры, возможности безграничны, когда дело доходит до персонализации этого исключительного пространства. С необставленным интерьером у вас есть свобода дать волю своему творчеству и превратить эту квартиру в собственный частный оазис. Дайте волю своему воображению, выбирая каждую деталь, чтобы она отражала ваш уникальный стиль и предпочтения.Сутиван ждет вас своим необычным шармом и оживленным сообществом. Прогуляйтесь по живописным улочкам, насладитесь местной кухней в очаровательных кафе и ресторанах и погрузитесь в богатую историю и культуру, которая пронизывает каждый уголок этого очаровательного городка.
Характеристики
Типология
Квартира
Договор
Продажа
Этаж
Нулевой этаж
Этажность здания
1
Лифт
Нет
Помещения
3
Спальни
2
Ванные
2
Терраса
Нет
Информация о ценах
Цена
€ 335 000
Энергоэффективность
  • Состояние

    Новое / На стадии строительства
  • Энергетическая сертификация

    Не подлежащий
Планировка
Screenshot 2023-07-04 at 15.29.15 2
Откройте для себя каждый уголок объекта недвижимости
+3
Доп. опции

Свяжитесь с рекламодателем

Или