Трехкомнатная квартира новое, второй этаж, Kaštela

€ 360 000
3
2
2
Нет
Балкон

Пометка

Объявление обновлено 26.11.2025
Описание

This description has been translated automatically and may not be accurate

ID: RE368205

Каштел Лукшич - Трехкомнатная квартира на первом этаже новостройки

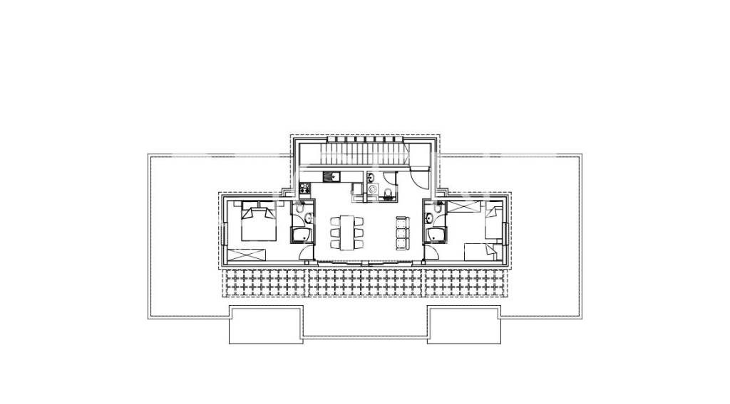
В продаже трехкомнатная квартира общей площадью 74,87 м², расположенная на первом этаже нового жилого дома в рамках современного проекта в Каштеле Лукшиче. Квартира состоит из прихожей, туалета, гостиной со столовой и кухней, прихожей, трех спален и двух ванных комнат. Планировка обеспечивает оптимальную организацию пространства и комфорт в повседневной жизни. Проект расположен в Каштеле Лукшиче, в тихой улице и в городской среде, в непосредственной близости от всех важных объектов, таких как школы, детские сады, магазины, больницы и общественный транспорт. Местоположение обеспечивает отличную транспортную доступность и находится на небольшом расстоянии от Сплита и Трогира. Здание является частью жилого комплекса, состоящего из восьми объектов различных типов. Он спроектирован с акцентом на комфорт и безопасность и включает в себя лифт, подземный гараж и открытые парковочные места. Особое внимание уделяется энергоэффективности и качественным техническим решениям. В наличии гаражные места по цене 10 000 евро и открытые парковочные места по цене 8 000 евро, их покупка не обязательна. Начало строительства запланировано на осень 2025 года, получение разрешения на строительство ожидается в конце лета. Квартира построена из высококачественных материалов, с отличной тепло- и звукоизоляцией и современными техническими решениями, обеспечивающими долгосрочный комфорт и безопасность. Каждая деталь разработана для удовлетворения потребностей современного образа жизни. Для получения дополнительной информации или договоренности о просмотре, пожалуйста, свяжитесь с нами.
Характеристики
Типология
Квартира
Договор
Продажа
Этаж
2 этаж
Этажность здания
2
Лифт
Нет
Помещения
3
Спальни
2
Ванные
2
Балкон
Да
Терраса
Нет
Отопление
Централизованное, воздушное, блок питания
Кондиционер
Автономное, холод/тепло
Информация о ценах
Цена
€ 360 000
Энергоэффективность

Потребление энергии

A+

Планировка
Откройте для себя каждый уголок объекта недвижимости
+10
Доп. опции

Свяжитесь с рекламодателем

Или