Квартира новое, нулевой этаж, Podstrana

€ 550 000
T
Нет

Пометка

Объявление обновлено 07.05.2026
Описание

This description has been translated automatically and may not be accurate

ID: RE560708

Подстрана - Земельный участок с проектом строительства виллы

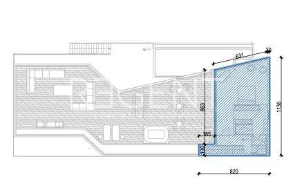
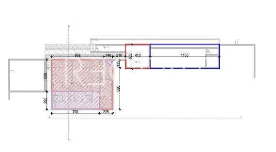
Земельный участок находится в Подстране, общей площадью 908 м². Собственность в порядке и чистая, без зарегистрированных обременений. Речь идет о строительном участке с разработанным основным проектом и выданным разрешением на строительство отдельно стоящего жилого дома, состоящего из подвала, первого этажа и одного этажа, с плоской крышей. Общая планируемая валовая площадь дома составляет 375,02 м², предусмотрена также вспомогательная постройка – бассейн площадью 47,80 м². Проект включает в себя полную документацию: архитектуру, статику, теплотехнику, водопровод и канализацию, технику бассейна, энергоэффективность, защиту от шума и электроустановки. Проект соответствует градостроительной документации муниципалитета Подстрана, и для него получено все необходимое согласие государственных органов, что дополнительно подтверждает юридическую безопасность инвестиций. Это возможность для покупателя, который ищет участок с чистой собственностью, решенным доступом и полной проектно-разрешительной документацией, готовый к началу работ без ненужных задержек. Для получения всей информации, а также для согласования просмотра, пожалуйста, свяжитесь с нами!

Za više informacija kontaktirajte našeg agenta zaduženog za ovu nekretninu:
Ana Gabelica
Mobitel: +385912633344
E-mail: ana@regent.hr
Telefon: +385 1 308 1111

www.regent.hr, ID oglasa RE560708,
Detalje ove nekretnine možete pogledati i na Regent stranici:
https://regent.hr/prodaja/podstrana-zemljiste-sa-projektom-za-izgradnju-vile
Характеристики
Типология
Квартира
Договор
Продажа
Этаж
Нулевой этаж
Лифт
Нет
Терраса
Нет
Информация о ценах
Цена
€ 550 000
Энергоэффективность
  • Состояние

    Новое / На стадии строительства
  • Энергетическая сертификация

    В ожидании сертификации
Планировка
Доп. опции

Свяжитесь с рекламодателем

Или