Трехкомнатная квартира новое, нулевой этаж, Omiš

€ 288 800
3
1
T
Нет
Терраса

Пометка

Объявление обновлено 26.11.2025
Описание

This description has been translated automatically and may not be accurate

ID: RE781079

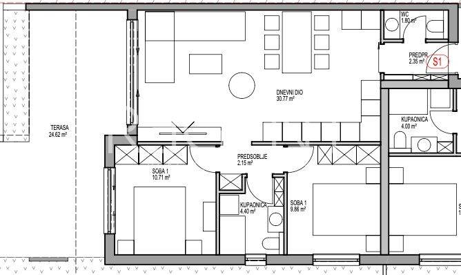
Подстрана, Строжанец - Однокомнатная квартира с просторной лоджией

Квартира расположена на первом этаже проекта Strožanac Residence, новой современной застройки в тихой жилой части Strožanac Gornji. Квартира на первом этаже состоит из: прихожей площадью 2,35 м², туалета 1,80 м² и просторной гостиной 31,64 м². Также состоит из: двух спален, одна площадью 10,71 м², а другая 9,52 м², затем ванной комнаты 4,40 м² и прихожей 2,15 м². В квартире также есть лоджия 2,87 м². Общая полезная площадь квартиры составляет Квартира спроектирована с акцентом на функциональность и комфорт, с высокими стандартами строительства и тщательно отобранными материалами. Гаражное парковочное место стоит 25 000 евро. Планируемое завершение работ намечено на конец лета 2027 года. Для получения дополнительной информации, а также для согласования осмотра, пожалуйста, свяжитесь с нами!
Характеристики
Типология
Квартира
Договор
Продажа
Этаж
Нулевой этаж
Этажность здания
3
Лифт
Нет
Помещения
3
Спальни
2
Ванные
1
Терраса
Да
Гараж, машиноместа
1 в частный гараж/парковка, 1 в общая парковка/гараж
Информация о ценах
Цена
€ 288 800
Энергоэффективность
  • Состояние

    Новое / На стадии строительства
  • Энергетическая сертификация

    Не подлежащий
Планировка
Доп. опции

Свяжитесь с рекламодателем

Или