Трехкомнатная квартира новое, первый этаж, Omiš

€ 700 000
3
2
1
Нет
Терраса

Пометка

Объявление обновлено 26.11.2025
Описание

This description has been translated automatically and may not be accurate

ID: RE184034

Омиш, Брзет - Двухкомнатная квартира с балконом и террасой в первом ряду у моря

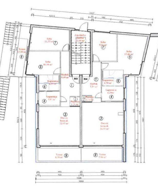
Квартира общей площадью 63,66 м² расположена на первом жилом этаже современного здания в тихой части Омиша в первом ряду от моря. Две спальни, две ванные комнаты и большие открытые пространства делают ее отличным выбором для семей, покупателей, желающих комфортный дом на побережье, и инвесторов, ищущих стабильную недвижимость для туристической аренды. Внутренняя планировка включает в себя коридор, открытую гостиную с кухней и столовой, две отдельные спальни и две ванные комнаты. Внешняя часть состоит из балкона площадью 8,78 м² и дополнительной террасы 12 м², идеально подходящих для отдыха и пребывания на открытом воздухе в теплые месяцы. Интерьер спроектирован с акцентом на свет и воздушность, с использованием современных отделочных деталей и качественных материалов. Большие стеклянные стены соединяют гостиную с открытым пространством и создают приятную, естественно освещенную целостность. Расположение тихое, благоустроенное и практичное для жизни. Пляжи, пешеходные дорожки, магазины и рестораны находятся поблизости, а Сплит и Макарска легко доступны благодаря хорошей транспортной доступности. Окружение предлагает баланс между спокойной средиземноморской жизнью и близостью ко всему необходимому для повседневной жизни. Здание полностью завершено, одобрено и разделено на этажи, что позволяет покупателям совершить безопасную и понятную куплю-продажу. Квартиры такого качества в таких местах редко появляются на рынке, что делает эту недвижимость надежной долгосрочной инвестицией. Цена составляет 720 000 евро с включенным гаражным парковочным местом, или 700 000 евро без гаражного места. Для получения дополнительной информации или договоренности об осмотре мы в вашем распоряжении.
Характеристики
Типология
Квартира
Договор
Продажа
Этаж
1 этаж
Этажность здания
3
Лифт
Нет
Помещения
3
Спальни
2
Ванные
2
Терраса
Да
Гараж, машиноместа
1 в общая парковка/гараж
Информация о ценах
Цена
€ 700 000
Энергоэффективность

Потребление энергии

A+

Планировка
Откройте для себя каждый уголок объекта недвижимости
+4
Доп. опции

Свяжитесь с рекламодателем

Или