Мастерская Аренда

€ 28 000/месяц
5+
2 900 m²
3+

Пометка

Объявление обновлено 12.12.2025
Описание

ID: 120

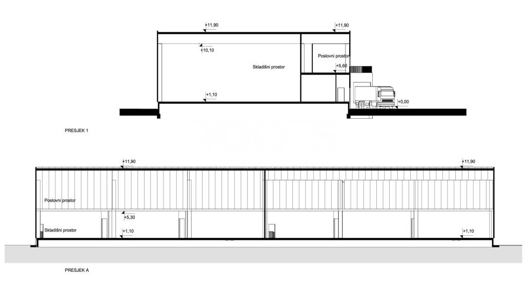
Zagrebačka županija, Stupnik, Gornjostupnička ulica, vrhunski projekt hale sa uredima u početnoj fazi izgradnje odmah uz glavnu prometnicu na zemljištu površine cca 10.000 m2.
 
Projekt uključuje 2200 m2 skladišnog prostora, cca 160 m2 pripadajućih prostorija ( ured, 2 wc-a, garderoba, stubište ) u prizemlju te 400 m2 uredskog poslovnog prostora ( uredi, kuhinja, wc-i) na prvoj etaži. Visina hale 12 metara.
 
Budući zakupoprimac može kreirati poslovni prostor prema vlastitim potrebama. Izvrsna lokacija, uz glavnu prometnicu, blizina brze ceste i autoputa na Lučkom.
 
Preporuka agencije. Početak radova 12/25., dok se završetak očekuje 10/26.
 
Preporuka agencije. Ostale informacije na upit.
Характеристики
Договор
Аренда
Типология
Мастерская
Площадь
2 900 m²
Помещения
5+ помещения, 3+ ванных
Этажность здания
2
Гараж, машиноместа
30 в частный гараж/парковка, 30 в общая парковка/гараж
Информация о ценах
Цена
€ 28 000/месяц
Цена за м²
10 €/m²
Подробности о расходах
Плата за кондоминиум
Никаких кондоминиальных расходов
Залог
Неуказана
Планировка
Stupnik, Gornji Stupnik
Stupnik, Gornji Stupnik
Stupnik, Gornji Stupnik
Stupnik, Gornji Stupnik
Доп. опции

Свяжитесь с рекламодателем

Или