Мастерская Аренда

€ 13 000/месяц
5+
1 300 m²
3+

Пометка

Объявление обновлено 12.12.2025
Описание

ID: 119

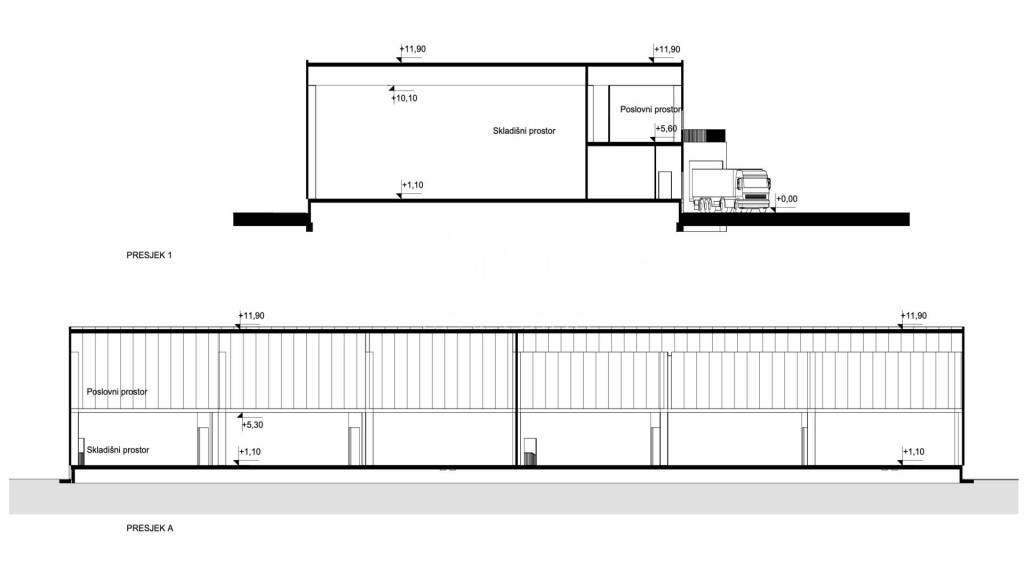
Zagrebačka županija, Stupnik, Gornjostupnička ulica, projekt hale sa uredima u početnoj fazi izgradnje odmah uz glavnu prometnicu na zemljištu površine cca 9.000 m2.
 
Projekt se gradi u dvije faze, prva faza uključuje 1000 m2 skladišnog prostora, prateće prostorije i stubište ( ukupno 80 m2 ) u prizemlju dok se na prvom katu nalazi uredski poslovni prostor od 240 m2 sa terasom 21 m2. Visina hale 12 metara.
 
U prvoj fazi budući zakupoprimac može kreirati poslovni prostor prema vlastitim potrebama. Izvrsna lokacija, uz glavnu prometnicu, blizina brze ceste i autoputa na Lučkom.
 
Početak radova 12/25., dok se završetak očekuje 10/26.
 
Dodatno, mogućnost proširenja kroz drugu fazu na dodatnih 1200 m2 skladišnog prostora i 300 m2 uredskog, sve u istom konceptu prema fazi 1.
 
Preporuka agencije. Ostale informacije na upit.
Характеристики
Договор
Аренда
Типология
Мастерская
Площадь
1 300 m²
Помещения
5+ помещения, 3+ ванных
Этажность здания
2
Гараж, машиноместа
15 в частный гараж/парковка, 15 в общая парковка/гараж
Информация о ценах
Цена
€ 13 000/месяц
Цена за м²
10 €/m²
Подробности о расходах
Плата за кондоминиум
Никаких кондоминиальных расходов
Залог
Неуказана
Планировка
Stupnik, Gornji Stupnik
Stupnik, Gornji Stupnik
Stupnik, Gornji Stupnik
Stupnik, Gornji Stupnik
Доп. опции

Свяжитесь с рекламодателем

Или