Dreizimmerwohnung Vidikovac, Zadar, Plovanija - Vidikovac, Zadar

€ 347.607
3
89 m²
1
2
Ja
Terrasse

Notiz

Anzeige aktualisiert am: 16.04.2026
Beschreibung

This description has been translated automatically and may not be accurate

Referenz: S-1347

Wohnung Vidikovac, Zadar, 86,03m2

ZADAR - Aussichtspunkt, attraktives Angebot eines Neubaus mit 9 Wohneinheiten!

Dieses Neubauprojekt mit 9 Wohneinheiten verteilt auf 3 oberirdische Etagen befindet sich in ruhiger Lage: Erdgeschoss und zwei Etagen.
Die Wohnungen im Erdgeschoss verfügen über einen Garten, die Wohnungen im 2. Obergeschoss über eine Dachterrasse.
Alle Wohnungen verfügen über zwei Außenparkplätze.

Diese Zweizimmerwohnung S9 befindet sich im 2. Stock und besteht aus:
- Korridor 1 (3,94 m2)
- WC (2,12 m2)
- Schlafzimmer 1 (8,93 m2)
- 2 Schlafzimmer (10,42 m2)
- Küche + Wohnzimmer (28,01 m2)
- Badezimmer (4,54 m2)
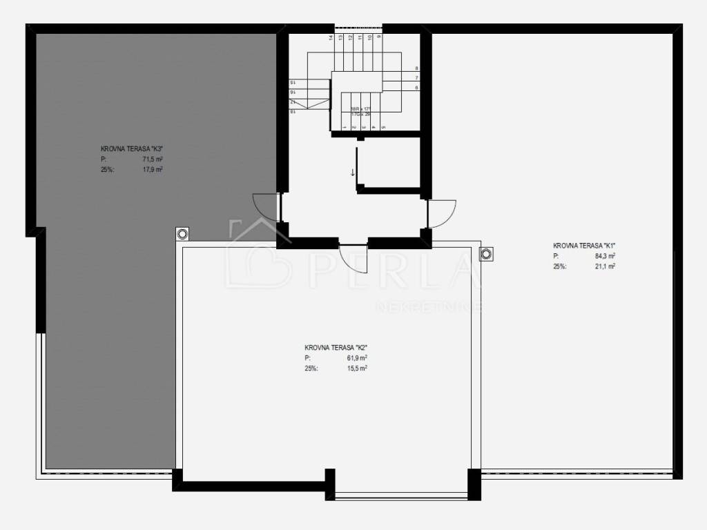
- Loggia (10,40 m2 brutto - 7,80 m2 netto)
- Dachterrasse (71,49 m2 brutto - 17,87 m2 netto)
- 2 Außenparkplätze (2 x 13,75 m2 - 5,50 m2 netto)
Gesamt: 167,21 m2.
Die gesamte Nettonutzfläche der Wohnung mit ihren Nebengebäuden beträgt 89,13 m2.

Im Gebäude stehen folgende Wohnungen zum Verkauf:
S1 – Erdgeschoss, Zweizimmerwohnung mit Garten, 86,03 m2 – 292.502,00 €
S2 – Erdgeschoss, Einzimmerwohnung mit Garten, 64,85 m2 – 220.490,00 €
S3 – Erdgeschoss, Zweizimmerwohnung mit Garten, 80,91 m2 – 275.094,00 €
S4 – 1. Etage, Zweizimmerwohnung, 81,19 m2 – 276.046,00 €
S5 – 1. Etage, Apartment mit einem Schlafzimmer, 60,24 m2 – VERKAUFT!
S6 - 1. Stock, Zweizimmerwohnung, 71,26 m2 - VERKAUFT!
S7 – 2. Etage, Zweizimmerwohnung mit Dachterrasse, 102,26 m2 – 378.362,00 €
S8 – 2. Etage, Einzimmerwohnung mit Dachterrasse, 75,72 m2 – 280.164,00 €
S9 – 2. Etage, Zweizimmerwohnung mit Dachterrasse, 89,13 m2 – 347.607,00 €

Beim Bau des Gebäudes werden hochwertige Materialien nach höchsten Baustandards verwendet, wie zum Beispiel:
- Stahlbetonkonstruktion mit einer Thermofassade von 10 cm.
- Dreischichtige PVC-Zimmerei mit elektrischen Jalousien und Moskitonetzen.
- In jedem Raum werden Klimaanlagen mit Hilfe eines Multi-Split-Systems installiert, im Wohnzimmer und in den Badezimmern wird eine elektrische Fußbodenheizung installiert.
Ausstattung der Wohnung:
- Hochwertiges Parkett in den Zimmern und im Wohnzimmer
- Hochwertige Keramikfliesen und Sanitärartikel
- Einbruchhemmende Eingangstür und Video-Gegensprechanlage am Eingang des Gebäudes
- Elektrische Fußbodenheizung (im Bad und Wohnzimmer)
- Multisplit-Klimaanlage (mehrere Innengeräte)
- Aufzug vom Erdgeschoss zur Dachterrasse
Alle verbauten Materialien, Boden- und Wandbeläge entsprechen höchsten Standards.

Das Gebäude befindet sich in einer sehr guten und häufig genutzten Lage in der Gegend von Vidikovac.
Der Aussichtspunkt zeichnet sich durch eine hervorragende Anbindung an alle Teile der Stadt aus.
Das Gebäude liegt nur 1500 m vom Meer und 2500 m vom Stadtzentrum entfernt.
Dieser großartige Standort ist ideal für den Alltag oder Investitionen, da er in der Nähe aller sozialen Einrichtungen wie einer Schule, einem Geschäft, einer Apotheke und einem Spielplatz für Kinder liegt.
Das Gebäude befindet sich im Bau und die Fertigstellung ist für Ende 2026 geplant.

*DER KÄUFER ZAHLT KEINE AGENTURPROVISION!

ID CODE: S-1347

Alma Cipurković
Mob: +385 (0)91 400 1616
Tel: +385 (0)99 284 1984
E-mail: alma@perlanekretnine.hr
www.perlanekretnine.hr

Iva Prtenjača
Mob: +385 (0)91 400 1414
Tel: +385 (0)99 284 1984
E-mail: iva@perlanekretnine.hr
www.perlanekretnine.hr
Merkmale
Art
Wohnung
Vertrag
Verkauf
Etage
2 etage
Stockwerke im Gebäude
2
Aufzug
Ja
Fläche
89 m²
Zimmer
3
Schlafzimmer
2
Badezimmer
1
Balkon
Nein
Terrasse
Ja
Garage, parkplätze (auto)
2 parkplatz(e)
Heizung
Unabhängige heizung, heißluft heizung
Klimaanlage
Eigenständig, kalt / warm
Preisinformationen
Preis
€ 347.607
Preis pro m²
3.906 €/m²
Energieeffizienz
  • Baujahr

    2026
  • Heizung

    Unabhängige heizung, heißluft heizung
  • Klimatisierung

    Eigenständig, kalt / warm
  • Energieausweis

    Nicht klassifizierbar
Entdecken Sie jeden Winkel des Anwesens
+27
Zusätzliche Optionen

Inserenten kontaktieren

Oder