Zweizimmerwohnung Privlaka, Privlaka

€ 240.000
2
67 m²
1
0
Nein
Terrasse

Notiz

Anzeige aktualisiert am: 30.04.2026
Beschreibung

This description has been translated automatically and may not be accurate

Referenz: A-3352

Apartment Privlaka, 67,18m2

PRIVLAKA, zu verkaufen Einzimmerwohnung S1 im Erdgeschoss von 67,18 m2, nur 100 m vom Meer entfernt, NEUES GEBÄUDE!

In außergewöhnlicher Lage, nur 100 Meter vom Meer entfernt, befindet sich ein modernes Neubauprojekt mit insgesamt 6 Wohneinheiten.
Das Gebäude besteht aus einem Erdgeschoss und zwei Etagen, auf jeder Etage befinden sich zwei Wohneinheiten.
Die Apartments im Erdgeschoss verfügen über private Gärten, die zum Entspannen und Aufenthalt im Freien einladen, während die Apartments im zweiten Stock über großzügige Dachterrassen verfügen.
Jede Wohneinheit verfügt über zwei Parkplätze, was zusätzlich zur Praktikabilität und zum Wohnkomfort beiträgt.

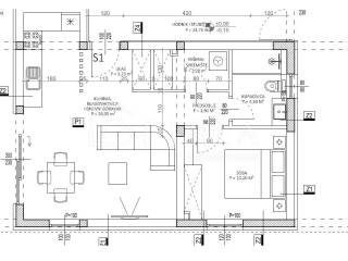
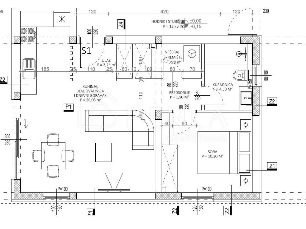
Diese Einzimmerwohnung S1 befindet sich im Erdgeschoss und besteht aus:
- Küche, Wohnzimmer und Esszimmer (26,05 m2)
- Schlafzimmer (10,20 m2)
- Badezimmer (4,50 m2)
- Eingang (3,23 m2)
- Eingangshalle (1,90 m2)
- Waschküche und Abstellraum (3,20 m2)
- überdachte Terrassen (12,80 m2 x 0,5 = 6,40 m2)
- 2 Außenparkplätze (26 m2 x 0,2 = 5,20 m2)
- Garten (65,00 m2 x 0,1 = 6,50 m2)
Die gesamte Bruttofläche der Wohnung beträgt 152,88 m², während die Nettofläche 67,18 m² beträgt.

Im Gebäude stehen folgende Wohnungen zum Verkauf:
S1 – Erdgeschoss, Einzimmerwohnung mit Garten, 67,18 m2 – 240.000,00 €
S2 – Erdgeschoss, Einzimmerwohnung mit Garten, 66,73 m2 – 240.000,00 €
S3 – 1. Etage, Zwei-Zimmer-Wohnung, 78,23 m2 – 275.000,00 €
S4 – 1. Etage, Zwei-Zimmer-Wohnung, 78,23 m2 – 275.000,00 €
S5 – 2. Etage, Zweizimmerwohnung mit Dachterrasse, 90,71 m2 – 450.000,00 €
S6 – 2. Etage, Zweizimmerwohnung mit Dachterrasse, 90,71 m2 – 450.000,00 €

Wohnungsausstattung:
- Hochwertige Keramikfliesen und Sanitärartikel
- Fußbodenheizung
- Klimageräte – Multi-Split (mehrere Innengeräte)
- Sicherheitstür
Alle verbauten Materialien, Boden- und Wandbeläge entsprechen höchsten Standards.

Privlaka ist ein kleiner Fischer- und Touristenort in der Nähe von Zadar und der Königsstadt Nin.
Sauberes und klares Meer und flache Sandbuchten machen es ideal für Familientourismus.
Dazu trägt auch das milde mediterrane Klima bei, das die Sommer warm und mit einem angenehmen Mistralduft beschert.
Geplante Fertigstellung der Bauarbeiten und Bezug bis Sommer 2026.
Eigentum ordentlich!

*DER KÄUFER ZAHLT KEINE AGENTURPROVISION!

ID CODE: A-3352

Iva Prtenjača
Mob: +385 (0)91 400 1414
Tel: +385 (0)99 284 1984
E-mail: iva@perlanekretnine.hr
www.perlanekretnine.hr

Alma Cipurković
Mob: +385 (0)91 400 1616
Tel: +385 (0)99 284 1984
E-mail: alma@perlanekretnine.hr
www.perlanekretnine.hr
Merkmale
Art
Wohnung
Vertrag
Verkauf
Etage
Erdgeschoss
Stockwerke im Gebäude
2
Aufzug
Nein
Fläche
67 m²
Zimmer
2
Schlafzimmer
1
Badezimmer
1
Balkon
Nein
Terrasse
Ja
Garage, parkplätze (auto)
2 parkplatz(e)
Heizung
Unabhängige heizung, heißluft heizung
Preisinformationen
Preis
€ 240.000
Preis pro m²
3.582 €/m²
Energieeffizienz
  • Baujahr

    2026
  • Heizung

    Unabhängige heizung, heißluft heizung
  • Energieausweis

    Nicht klassifizierbar
Entdecken Sie jeden Winkel des Anwesens
+21
Zusätzliche Optionen

Inserenten kontaktieren

Oder